МуханбетжановС.Т.,Сауранбаев Д.С.
Казахский национальный технический
университет имени К.И.Сатпаева,
г. Алматы, Республика Казахстан
Эффективность применения систем
активной сейсмозакщиты для снижения сейсмического воздействия на здания
В современном сейсмостойком строительстве исключительно
актуальное значение приобретает обеспечение надежности зданий и сооружений при
условии рационального расходования дополнительных материальных средств и
трудозатрат на их антисейсмические усиления /1,2/.
Традиционный способ
обеспечения сейсмостойкости сооружений предусматривает повышение несущей
способности конструкций за счет увеличения их размеров и прочности материалов,
а в зданиях с несущими кирпичными и каменными стенами применения
антисейсмических поясов, железобетонных включений, дополнительного армирования
простенков, пересечения продольных и поперечных стен. Все это требует
значительных дополнительных затрат строительных материалов и средств.
Увеличение размеров конструкций или прочности материалов приводит к увеличению
жесткости и веса сооружений что, в свою очередь, вызывает возрастание
инерционной (сейсмической) нагрузки /1,3,4/.
В последние годы в
экспериментальном строительстве находит применение новый способ повышения
сейсмостойкости зданий, названный активным
способом сейсмозащиты в отличие от традиционного
(пассивного) способа, требующего дополнительных затрат на антисейсмические
усиления сооружений. Активный способ сейсмозащиты предусматривает снижение
сейсмических нагрузок на сооружения за счет регулирования их динамических
характеристик во время колебательного процесса при землетрясении. Регулирование
динамических параметров осуществляется таким образом, чтобы избежать
резонансного увеличения амплитуд колебаний сооружения или по крайней мере,
понизить резонансные эффекты. Это достигается соответствующим выбором
динамической жесткости и соответственно частот (периодов) собственных колебаний
сооружения /2/.
Изменение динамической
жесткости или частот (периодов) собственных колебании сооружения при землетрясении
может быть достигнуто с использованием специальных конструктивных устройств,
таких как скользящие пояса (СП), выключающиеся связи (ВС), гасители колебаний
(ГК), кинематические фундаменты (КФ), свайные фундаменты, обладающие
повышенными диссипативными характеристиками (СФД), рамно-связевые системы с
составными диафрагмами жесткости (РССД), резино-стальные цилиндрические опоры
(РСЦО) и др /1/.
Основным условием
эффективности таких систем является удаленность частот их собственных колебаний
от преобладающих (доминантных) частот сейсмического движения грунта основания
сооружения.
Результаты изучения
взаимодействия основания сооружения с его надземной частью при различных
землетрясениях показывают, что при высокочастотных сейсмических волнах хорошо
переносят землетрясения гибкие системы, т.е.
каркасные или высокие здания и, наоборот, при длиннопериодных
низкочастотных сейсмических волнах — здания с жесткой конструктивной схемой или
низкие, мало- этажные. Однако предполагать, что в конкретном регионе преобладают
землетрясения с определенными доминантными частотами не приходится. Поэтому в
подавляющем большинстве случаев инженеру- проектировщику приходится принимать
решения в условиях неопределенности информации о параметрах прогнозируемых
сейсмических воздействий /5,6/.
Расчетно-теоретические
исследования, выполненные в ЦНИИСК им. Кучеренко, Симферопольском университете(Россия),
Казпромстройпроекте (Казахстан) и других организациях свидетельствуют, что
более благоприятное поведение в условиях неопределенности данных об изменениях
внешнего воздействия обнаруживается у систем сейсмозащиты, динамические
параметры которых могут изменяться в регулируемых пределах в процессе
землетрясения.
Наиболее перспективными
системами сейсмоизоляции, нашедшими применение в экспериментальном
строительстве стран СНГ, являются системы:
— со скользящим поясом
(СП);
— с выключающимися
связями (ВС);
— с кинематическими
опорами (КО);
— с гасителями колебаний
(ГК);
— со свайными
фундаментами, обладающими повышенными диссипативными свойствами (СФД);
— рамно-связевые системы
с составными диафрагмами жесткости (РССД);
— резино-стальные
цилиндрические опоры (РСЦО)
Сейсмоизолирующие системы со скользящим поясом(СП).
Все сейсмоизолирующие
системы со скользящим поясом (рис.1) конструктивно выполнены в виде верхнего и
нижнего опорных элементов, между которыми размещен изолирующий слой из
материалов минерального происхождения: песок, глина и т. д. или синтетических
прокладок с низким значением коэффициента трения, например, фторопласт /7/.

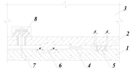
Рис. 1. Схема элементов сейсмоизолирующего скользящего
пояса. 1 — верхняя обвязка фундамента (стен подвала); 2 — ростверк; 3 —
надземные конструкции здания; 4 — скользящая опора; 5 — упругий ограничитель
горизонтальных перемещений; 6 — жесткий ограничитель горизонтальных
перемещений; 7 — ограничитель вертикальных перемещений (вертикальная связь); 8
— вертикальный амортизатор
Сейсмоизолирующие
опорные конструкции скользящего типа за счет сил сухого трения обеспечивают
жесткую кинематическую связь сооружения колеблющимся основанием до тех нор,
пока суммарная инерционная сила в системе не превысит определенного уровня —
порога срабатывания, величина которого зависит от коэффициента трения и
конфигураций поверхностей скольжения фундамента. Поглощение энергии колебаний и
ее рассеяние при относительном проскальзывании опорных элементов
сейсмоизолирующего устройства весьма значительно, что позволяет обойтись без
постановки дополнительных гасителей колебаний /8/.
В зависимости от формы
поверхностей скольжения сейсмоизолирующие устройства скользящего типа можно
разделить на две группы: невозвратные и конструкции с гравитационной
восстанавливающей силой.
К первой группе
относятся опорные устройства с горизонтальными площадками скольжения.
Потенциальная энергия взаимного положения элементов конструкции в процессе их
относительного перемещения остается постоянной, т. е. система всегда находится
в положении устойчивого равновесия /7,8/.
Устройства второй
группы, имеющие в общем случае негоризонтальные поверхности скольжения, обеспечивают
возврат сместившегося в результате сейсмического толчка сооружения в начальное
положение устойчивого равновесия за счет возникновения гравитационной
восстанавливающей силы постоянной по величине или позиционной, т. е. зависящей
от взаимного расположения элементов конструкции (криволинейные поверхности).
Характерным устройством
первой группы является сейсмоизолирующий «скользящий пояс», представляющий
собой ряд отдельных опор, между элементами которых установлены прокладки из
фторопласта - 4 в паре трения с пластинами из нержавеющей стали (рис. 2).
Первоначально такие конструкции разрабатывались для подвижных опор мостов.
ЦНИИСК им. В. А. Кучеренко совместно с Фрунзенским политехническим институтом
впервые применил «скользящий пояс» для сейсмоизоляции зданий /8/.
На рис.2. показана
конструкция скользящего пояса, которая была реализована в экспериментальном
жилом доме серии 158, построенном в г. Бишкек.

Рис. 2. Экспериментальный жилой дом серии 158 на
сейсмоизолирующих опорах с прокладками из фторопласта
В результате
исследований различных комбинаций пар трения в «скользящем поясе» был принят
вариант с использованием пластин из фторопласта - 4 - синтетического материала
(тетрафторэтилен) с низким значением коэффициента трения (по стали 0,04-0,1).
Этот материал не горит, не стареет, обладает чрезвычайно высокой химической
стойкостью; не реагирует с
концентрированными кислотами и щелочами,
не гниет, сохраняет свои свойства в интервале температура от —60° до +60°.
Испытания модели жесткого сооружения на виброплатформе показали существенное
снижение реакции системы со скользящим поясом по сравнению с традиционным фундаментом
жесткого типа. Характерной особенностью поведения фрикционных систем с
горизонтальными поверхностями скольжения является возможность возникновения
вибрационного перемещения, т. е. медленно направленного движения с постоянной
или незначительно изменяющейся скоростью /8/.
Сейсмоизолирующие кинематические фундаменты(КФ).
Среди многочисленных
сейсмоизолирующих устройств следует особо выделить класс опорных кинематических
фундаментов (ОКФ) к которым относится кинематический фундамент (КФ),
разработанный в Казпромстройпроекте (Казахстан) /9/.
К классу кинематических
опор (ОКФ) относится кинематический фундамент (КФ), разработанный в Казахском
промстройниипроекте.
Конструкция КФ (рис. 3.)
представлена подвижным элементом со сферической пятой, опирающейся на опорную
плиту или другое твердое основание. Шарнирная связь с фундаментным строением
обеспечивает подвижность в горизонтальной плоскости по всем направлениям. КФ
выполняется из бетона марки 300-400 и армируется стальными сетками.

Рис.3. Конструктивная форма КФ, образованная частью сферы 1
—КФ;2 — опорная плита; 3— шайба-шарнир; 4 — связующий анкер.
Фундамент после оклейки зазоров
стеклотканью по внешнему виду не отличается от распространенных в промышленном
строительстве столбчатых фундаментов и в качестве опорного элемента может
располагаться как в уровне первого этажа, так и в грунте ниже нулевой отметки.[9]
Шарнирное соединение
выполняется в виде связующего анкера и плоской стальной шайбы, квадратной в
плане. Шарнирное соединение является одновременно ограничителем перемещений,
так как связующий анкер создает возрастающее сопротивление повороту КФ. Роль ограничителя выполняет также грунт,
обжимающий фундамент при засыпке.
Из конструктивной схемы
фундамента видно, что гравитационная сила, удерживающая КФ в состоянии
устойчивого равновесия, определяет горизонтальную жесткость его и зависит от
веса на фундаментного строения и радиуса кривизны пяты. Варьируя жесткость КФ
можно изменять в широких пределах. Выведенный из равновесия фундамент будет
стремиться к начальному положению.
Геометрические параметры
кинематического фундамента (КФ) зависят от величины передаваемой на фундамент
вертикальной нагрузки, прочности используемого материала и интенсивности
сейсмического воздействия.
Минимальные размеры
собственно КФ и опорной фундаментной плиты (ОП) должны соответствовать условиям
прочности по несущей способности и смятию контактных поверхностей. Размеры ОП в
плане зависят от несущей способности основания. Прочность контактируемых
элементов проверяется на смятие по СНиП РК 2.03-30-2006 «Бетонные и
железобетонные конструкции. Нормы проектирования».
Систему сейсмоизоляции с
кинематическими фундаментами рекомендуется применять при проектировании и
строительстве в сейсмических районах экспериментальных зданий с жесткой
конструктивной схемой в соответствии с требованиями специальных рекомендаций
/9/.
Системы с выключающимися связями(ВС).
Критические замечания к
«гибким» этажам высказывались еще в 30-х годах. Отмечалось, что такие здания в
некоторых случаях испытывают значительные перегрузки, вызывающие разрушения.
Слабым местом таких систем является сам «гибкий» этаж. Малая диссипация в резонансе
приводит к большим амплитудам колебаний и кручению несущих стоек. Сильные
повреждения здания с первым «гибким» этажом получили при землетрясениях в
Лонг-Биче (1933 г.), Агадире (1960 г.), Скопле (1963 г.) и в особенности в
Каракасе (1967 г.) /2,3,10/.
Разрушение таких зданий
начиналось с перекоса стоек «гибкого» этажа и затем потерей несущей способности
в местах соединений с фундаментом и вторым жестким этажом.
Чтобы избежать
возможности опасных резонансных колебаний зданий с первым гибким этажом при
землетрясениях с большими доминантными периодами, в ЦНИИСК им. Кучеренко
(Россия) была разработана конструкция зданий с выключающимися связями. Система
сейсмической защиты с выключающимися связями названа адаптивной и предназначена
для снижения инерционных нагрузок в здании, возникающих при сейсмическом
воздействии.
Адаптация к сейсмическим
воздействиям достигается за счет применения специальных конструктивных
элементов, которые повышают жесткость сооружения в начальном состоянии и
выключаются при достижении некоторого порогового уровня амплитуд сейсмических
колебаний сооружения. При этом все несейсмические нагрузки должны полностью
восприниматься несущими конструкциями сооружения в состоянии, когда
дополнительные жесткие связи выключены /2,4/.
Сейсмоизоляция (ВС)
включает жесткий связевый элемент (связевая панель, контрфорс или иная жесткая
конструкция) и особенно выключающиеся элементы (разрушающиеся детали).
Выключающийся элемент (сварная и бетонная шпонки, металлическая деталь или иная
конструкция) жестко прикрепляется к связевому элементу и к основной несущей
конструкции (ригель, перекрытие и т. п.) или иным способом, обеспечивая жесткую
связь вышележащих этажей и фундамента до определенной пороговой величины
сейсмической нагрузки и перемещения. После превышения этой пороговой величины
выключающийся элемент разрушается и после этого связевый элемент не участвует в
работе несущей конструкции зданий /3,4/.
В зависимости от
конструктивной схемы и высоты здания выключающиеся связи могут размещаться либо
по горизонтали (в уровне одного или нескольких этажей), либо по высоте здания.
В многоэтажных зданиях
выключающиеся связи устраиваются в нижних каркасных этажах(рис.4). Вышележащие
этажи представляют собой жесткие пространственные конструкции коробчатого типа,
например, крупнопанельные, объемно-блочные, кирпичные, а также комплексной
конструкции и т. п..В плоскости рам нижней каркасной части устраиваются
дополнительные конструктивные элементы, выполняющие роль выключающихся связей,
которые могут отключаться во время землетрясения. После землетрясения выключающиеся
связи восстанавливаются до первоначального состояния. В качестве таких
конструктивных элементов могут использоваться панели из бетона,
керамзитобетона, кирпичной кладки, декоративные решетки, диагональные растяжки
или раскосы /3,5/.

Рис. 4. Здания с выключающимися связями в нижних каркасных
этажах. 1 — верхние этажи жесткой конструкции; 2 —каркасный гибкий нижний этаж;
3— Выключающиеся панели-связи; 4 — выключающиеся диагональные связи.
Применяется
конструктивное решение ВС двух разновидностей. Одно из них представляет собой
жесткие панели-связи, например, панели перегородок, которые прикрепляются к
фундаментам колонн снизу и к ригелям рамы сверху. Выключение связи в этом
случае связано с разрушением панели. На рис. 4 представлена принципиальная
схема работы выключающейся связи этой разновидности. Конструкция ВС другой
разновидности (рис. 5) состоит из двух элементов — жесткой диафрагмы и
собственно выключающегося элемента связи (ВС). Конструктивно диафрагма может
быть выполнена в виде панели, декоративной решетки, арки, треугольного элемента
типа фермы с жесткими узлами, элемента архитектурного оформления здания и т. п.

Рис.5. Конструктивные решения зданий с выключающимися
связями. а) —выключающиеся (разрушающиеся) панели связи; б)—выключающиеся
элементы в сочетании с жесткими неразрушающимися сквозными или сплошными
панелями; в) — размещение выключающихся элементов и связей в двух нижних
каркасных этажах.
Подводя итог
всего вышеизложенного приходим к выводу, что в современном строительстве сейсмостойких
зданий актуально применение систем активной сейсмозащиты, позволяющие снизить дополнительные
затраты на повышение несущей способности конструкций за счет увеличения их
размеров и прочности материалов что, в свою очередь, вызывает возрастание
инерционной сейсмической нагрузки. За счет применения систем активной
сейсмозащиты обеспечивается снижение сейсмической нагрузки на здание в среднем
на 2-3 балла. Мировой опыт строительства зданий с системами активной
сейсмозащиты показывает об отсутствии
необходимости крупных капитальных вложений в период восстановительных
работ после сильных землятрясений и избежать жертв среди населения из-за
разрушения зданий.
Литература
1. Жунусов
Т.Ж. Основы сейсмостойкости сооружений – Алматы: Рауан, 1990 – 270 с.;
2. Бубнович
Э.В. Особенности проектирования зданий в сейсмических районах. Учебное пособие–
Алматы: КазНТУ им. К.И.Сатпаева, 2012;
3. Айзенберг Я.М.
Фундамент зданий, возводимых в сейсмических районах.;
4. Медведев С.В.,
Карапетян Б.К., Быховский В.А. Сейсмические воздействия на здания и сооружения.
Руководство по проектированию сейсмостойких зданий и сооружений, Т.1. —М.:
Стройиздат, 1968. — 192 с.;
5. Поляков В.С.,
Килимник Л.Ш., Черкашин А.В. Современные методы сейсмозащиты зданий – М.: «Стройиздат», 1989 – 320
с.;
6. Жунусов
Т.Ж., Шахнович Ю.Г., Горовин И.Г., Королев А.Н. Исследования каркасного здания
на сейсмоизолирующих опорах. – Ж. Бетон и железобетон, №7, 1985;
7. Солдатова
Л.Л. Исследование работы двухмассовой модели здания с сейсмоизоляционным
скользящим поясом. – В кн.: Сейсмостойкое строительство. Серия XIV, вып. 5,
1979;
8. Лядский
В. А. Сейсмоизоляция общественных зданий с элементами фторопласта в конструкции
фундамента. Диис. маги. техники и технологии строительства. Спб, 2009;
11. СНиП РК
2.03-30-2006 Строительство в сейсмических районах – Алматы: KAZGOR,
2006.