Ерк Н.А., Калашников
А.А., Таттибаев Х.А.
Таразский
государственный университет им. М.Х.Дулати, Казахстан
ТЕХНОЛОГИЧЕСКИЕ
СХЕМЫ РАЗМЕЩЕНИЯ ПОЛИВНОГО МОДУЛЯ на
оросительную СЕТЬ
Используя традиционные схемы взаимного расположения борозд
и временных оросителей,
разработаный автоматизированный оросительный модуль предназначен для технологии дискретного полива, который
можно размещать на поливной
сети нижеследующим образом[1].
Если при продольной схеме расположения временных оросителей
поливные борозды и параллельные им временные оросители расположены по
наибольшему уклону орошаемого поля, то можно использовать схему расположения
устройства, показанную на рисунке 1. Здесь возможно двустороннее
командование временных оросителей, облегчается полив на пересеченном рельефе. При такой технологической схеме поливные
модули 3 (рисунок 1) располагаются парами с последовательным соединением их
временным оросителем 5. Расстояния между временными оросителями (от 50 до 200
м) определяются максимально допустимыми расходами воды и длиной выводных борозд.
Длина временного оросителя равна длине поливных борозд и используется для
подачи воды нижерасположенному поливному модулю. Поэтому его можно использовать как транзитную борозду. Расстояние между распределителями 2 равно длине двух поливных борозд. С одной её
водозаборной точки будет поливаться участок, обслуживаемый двумя поливными
модулями.
При значительных уклонах местности во избежания размыва применяется косое расположение
поливных борозд и временных оросителей по отношению к уклону.
Такой же схемой можно воспользоваться при поливе отдельных поливных модулей без соединения
их парами (рисунок 2). При этом в нижерасположенные выводные
борозды 4 вода подается
отдельными транзитными выводными бороздами 5. Можно использовать
транспортирующие низконапорные полиэтиленовые шланги, укладывая их параллельно
в одну транзитную борозду, поскольку по технологии полива подача воды к ним
производится поочередно.
Здесь временный ороситель заменяется транзитными
бороздами.Таким образом, можно одним поливным модулем поливать площадь,
рассчитанную для двух поливных устройств.
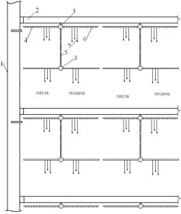
Поливная
сеть с продольной схемой расположения его элементов:
|
iвыв. бор.= 0 iпол. бор. ≥ iвыв. бор |

1-
распределитель
первого порядка; 2- распределитель; 3- поливное устройство; 4- выводная
борозда; 5- временный ороситель; 6- вход в борозды; 7- борозда
Рисунок 1- Схема
расположения поливного модуля парами с последовательным соединением их к
временным оросителям
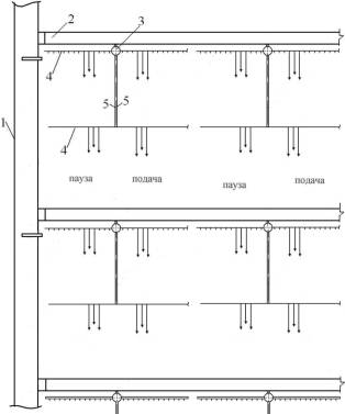
Поливная
сеть с продольной схемой расположения его элементов:
|
iвыв. бор.= 0 iпол. бор.≥ iвыв. бор. |

1-распределитель первого
порядка; 2- распределитель; 3- поливное устройство; 4- выводная борозда; 5-
транзитная борозда (временный ороситель)
Рисунок 2 – Схема
расположения отдельных поливных модулей без соединения их парами
При проведении полива по меньшему уклону временные
оросители на продольной схеме
нарезают по меньшему уклону, а выводные борозды по наибольшему уклону орошаемой
площади. При такой технологической схеме поливной сети модуль можно располагать
по схеме, показанной на рисунке 3. В данном случае для проведения дискретного полива вторая
(смежная) выводная борозда будет нарезаться ниже по уклону на расстоянии,
равном длине поливных борозд параллельно вышерасположенной выводной борозде.
Для транспортирования воды используется транзитная борозда. Она будет
нарезаться параллельно поливным бороздам. Для исключения потерь воды на
глубинную фильтрацию в транзитной борозде, её можно снабдить низконапорным водотранспортирующим
полиэтиленовым шлангом.
При такой схеме поливной сети расстояния между временными
оросителями могут быть больше, но при малом уклоне снижается скорость воды в
них. Двустороннее командование оросителей невозможно.
При поперечной схеме расположения временных оросителей
относительно направления поливных борозд поливные модули соединяются
параллельно временному оросителю (рисунок 4).
Если при поперечной схеме поливные борозды нарезаются по
наибольшему уклону, а временные оросители по меньшему уклону, то постоянный
распределитель, из которого они получают воду, располагается по большему уклону.
Выводные борозды поливных устройств располагаются
параллельно на расстоянии равным длинам поливных борозд. В нижерасположенные
поливные борозды вода подается по транзитной борозде, либо по
водотранспортирующему полиэтиленовому шлангу.
Расстояния между временными оросителями определяются
двойной длиной поливных борозд. Длина временных оросителей в этой схеме составляет от 400-600 до 800-1000 м, в зависимости
от уклона оросителя, расхода воды и водопроницаемости почвы. При сложных условиях рельефа и сильной
водопроницаемости грунта длина оросителей уменьшается. Расположение временных
оросителей по наименьшему уклону не допускает двустороннего командования их,
снижается скорость течения воды
в оросителе.
Эту же схему можно использовать, если поливные борозды
нарезаются по наименьшему уклону,
а временные оросители по наибольшему. Тогда длина временных оросителей
составляет около 400 м, а расстояние между ними равно длине двух поливных
борозд (120-160 м) в зависимости от водопроницаемости почвы, уклона борозд и
подаваемого в них расхода воды.
Расстояние между постоянными участковыми распределителями в
этой схеме можно принимать 400 м, а длину их — около 800-1000 м.
При прогнозировании развития и выбора поливной техники
выделяют такие основные показатели поливной техники как производительность
труда или нагрузка на одного работающего за сезон; удельный расход воды на
единицу одновременно поливаемой площади; затраты энергии за сезон на 1 га
политой площади.
В орошаемом земледелии повышение производительности труда является
необходимым фактором. Так, при использовании широкозахватной дождевальной
техники сезонная загрузка на 1 оператора составляет 200-250 га (Кубань)[2].
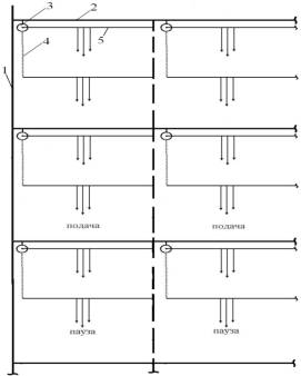
Поливная сеть с продольной схемой
расположения его элементов:
iпол. бор.≥ iвыв. бор

1-распределитель первого
порядка; 2- распределитель; 3- поливное устройство; 4- выводная борозда; 5-
транзитная борозда (временный ороситель)
Рисунок 3 - Схема
расположения временных оросителей относительно направления поливных борозд
(поливные модули соединяются временному
оросителю параллельно)
При поверхностном поливе уровень производительности труда составляет
100-120 га за сезон на 1 человека.
Для повышения производительности труда естественно
стремление увеличивать распределяемый расход воды. Но это стремление не должно
нарушать основные требования к равномерному увлажнению почвы по глубине и
площади, не вызывать водную эрозию почв и сохранять её плодородие. Выполнение
этих условий связано с тем, что увеличивая общий расход воды, необходимо
увеличивать площадь одновременного полива, чтобы подача воды на единицу площади
не возрастала и не превышала водопоглощающую способность почвы. Поэтому
развитие поливной техники идет по пути снижения удельной водоподачи при поливе,
и что её величина стремится к 25-50 л/с на 1 га орошаемой площади, как при поливе дождеванием, так
и при поливе по бороздам. В идеале, величина не должна превышать расхода воды с
орошаемого поля,этодостигается при применении капельного орошения, импульсного
и мелкодисперсного дождевания[3].
Согласно вышеприведенного при разработке
автоматизированного оросительного модуля безнапорной самотечной поливной сети
необходимо учесть, что верхний предел расходной характеристики каждого его
типоразмера составляют Qтип.= пqув, где п-площадь, навешиваемая к
типоразмеру поливного устройства, га; qув-расход удельной
водоподачи, л/с на 1 га. С другой стороны Q будет ограничиваться пропускной
способностью временного оросителя при поперечной схеме расположения его и
пропускной способностью выводной борозды при продольной схеме расположения. Все
это связано с необходимостью обеспечения проходимости сельскохозяйственных
машин при послеполивной обработки почв. Как известно, этому соответствует поперечное сечение
временных оросителей (или выводных борозд) с расходом 20-40 л/с[3].
Отсюда можно сделать вывод, что если на поле
предусматривается послеполивная обработка почвы, то типоразмеры поливных
модулей будут определяться поперечным сечением временных оросителей и выводных
борозд. При этом типоразмер поливных модулей с максимальной расходной
характеристикой (80 л/с) можно применять при продольной схеме.
Если послеполивная междурядная обработка почвы не
требуется, то при поперечной схеме полива (рисунок 4), когда поливная струя в
борозды подается непосредственно из временного оросителя (имеется в виду, что
выводные и транзитные борозды заменяются временными оросителями, т.е. пропускные способности их могут
достигать до 100 л/с),
расходную характеристику поливного устройства можно довести до 200 л/с. При
этом оно должно производить водозабор из постоянного распределителя.
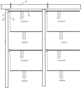
Поливная сеть с продольной схемой
расположения его элементов:
iпол. бор.>iвыв.
бор

1-распределитель первого
порядка; 2- распределитель; 3- поливное устройство; 4- выводная борозда; 5-
транзитная борозда (временный ороситель)
Рисунок 4 - Схема
расположения временных оросителей относительно направления поливных борозд
(поливные модули соединяются параллельно временному оросителю)
Из вышеприведенного следует, что поливной модуль для
автоматизации самотечной безнапорной поливной сети может быть выполнен 1-10 гектарным комплектом (при среднем размере поливной струи 1
л/с).
Рассматриваемые схемы размещения поливного устройства на оросительной сети
позволяют обеспечить рациональное применение элементов техники полива
сельскохозяйственных культур с учетом рельефа орошаемых площадей. Внедрение в фермерских хозяйствах водосберегающей
технологии дискретного полива позволит поднять продуктивность возделываемых
культур в орошаемой зоне Республики Казахстан и снизить затраты оросительной
воды на единицу получаемой продукции.
Литература:
1.
Разработать технические
средства гидроавтоматизации водораспределения на элементах оросительной сети»:
Отчет о НИР (заключительный) /КазНИИВХ. - Тараз, 2008.
2.
Вагапов
Р.И., Таттибаев А.А., Таттибаев Х.А. Разработать технологию автоматизации –
водораспределения, водоизмерения и полива сельскохозяйственных культур: Отчет о
НИР/ ДГП «НИВХ».- Инв. №0204РК01079. – Тараз, 2005.
3.
Гершунов Э.В. Создать и
внедрить систему автоматизированного полива по бороздам с рассредоточенным
током воды в условиях юга Казахстана, обеспечивающую повышение
производительности труда до 5-6 га в смену и КПД техники полива до 0,8-0,9:
отчет о НИР (закл.) / КазНИИВХ. – Алма-Ата, 1987. – 71 с, - Инв. №
0287.0074114.