Кожагельдина Акмарал Сагындыккызы - преподаватель
Алматинского
Государственного колледжа энергетики и
электронных технологий
ВНЕДРЕНИЯ НОВЫХ
ЭНЕРГОСБЕРЕГАЮЩИХ ТЕХНОЛОГИЙ С ИСПОЛЬЗОВАНИЕМ
ТЕПЛОНАСОСНЫХ УСТАНОВОК (ТНУ) В СИСТЕМАХ
ОБЩЕСТВЕННЫХ И ПРОИЗВОДСТВЕННЫХ ЗДАНИЙ В РЕСПУБЛИКЕ КАЗАХСТАН
Развитие мировой
энергетики на рубеже XX и XXI века преимущественно определяется следующими факторами:
увеличивающимся ростом потребления природных энергоресурсов; повышением цен на
органическое топливо (нефть, газ); усилением вредного воздействия производства
на окружающую среду.
Действие этих
факторов непосредственно отразилось на структуре топливо – энергетического
комплекса промышленно развитых стран мира, в том числе и Республики Казахстан,
где в энергетике преимущественное распространение получили тепловые источники
энергии на органическом топливе, в первую очередь на угле.
В Республике Казахстан
так же, как и во всем мире, возрастает стоимость тепловой энергии, получаемой
путем сжигания органических топлив в котельных и электроэнергии, вырабатываемой
на угольных ТЭС. Это стимулирует внедрение тепловых насосов, что позволит
сократить вредные выбросы в атмосферу котельных, особенно в городах и крупных
населенных пунктах.
В настоящее время в
промышленности достигнуты определенные успехи по использованию вторичных
энергоресурсов (ВЭР) с высоким температурным потенциалом (жидкости с
температурой более 150 0С и газы с температурой более 300 0С).
В то же время низкотемпературные сбросные тепловые потоки практически не
используются. Эти «тепловые реки» имеют круглый год температуру 20–40 0С
и охлаждаются в градирнях и других испарительных охладителях, отдавая в
атмосферу вместе с теплотой и часть воды. В таких отраслях как химическая и
микробиологическая промышленность
водооборотные циклы
достигают 30–50 тыс.м3/ч, т.е. теряется в атмосферу сотни
гигокалорий теплоты. Кроме того, при усиливающихся современных требованиях к
защите окружающей среды, практически во всех крупных городах страны действуют
или строятся станции аэрации, очистные сооружения. После очистки на них вода
зимой имеет температуру не менее 10 – 15 0С. Частичный возврат этой
сбросной тепловой энергии и уменьшение теплового загрязнения окружающей среды
также стимулирует внедрению тепловых насосов. Также в сельской местности пока
преобладают источники децентрализованного теплоснабжения, главным образом,
индивидуальные отопительные установки. Это будет стимулировать развитие
тепловых насосов малой мощности 5 – 20 кВт.
В южных регионах
республики имеются источники природной теплоты, например, геотермальные воды (с
температурой воды выше температуры окружающей среды), артезианские скважины,
грунтовые воды и т.д., которые практически не используются.
Поэтому в тех случаях,
когда температура располагаемой теплоты или теплоты ВЭР низка и недостаточна
для полезного использования в системе теплоснабжения, температурный уровень
этой теплоты можно искусственно повысить с помощью термотрансформатора –
теплового насоса, затратив на это какую–либо энергию (электрическую,
механическую, тепловую).
Тепловые насосы или термотрансформаторы – это экологически чистые
компактные фреоновые установки, позволяющие получать теплоту для отопления и
горячего водоснабжения за счет использования теплоты низкого потенциального
источника (НПТ) путем переноса ее к теплоносителю с более высокой температурой
(ВПТ). В качестве источника НПТ могут быть использованы: промышленные и
очищенные бытовые стоки, вода технологических циклов; теплота грунтовых,
геотермальных, артезианских вод; теплота наружного или удаляемого из здания
воздуха; грунта или солнечной энергии; отходящих газов и т.д.
ТНУ целесообразно использовать при переходе к
децентрализованным системам теплоснабжения (без протяженных дорогостоящих
тепловых сетей), когда тепловая энергия генерируется вблизи ее потребителя, а
топливо сжигается вне населенного пункта (города). Внедрение таких экономичных
и экологически чистых технологий теплоснабжения необходимо в первую очередь во
вновь строящихся районах городов и в населенных пунктах при полном исключении
применения электрокотельных, потребление энергии которыми в 3-4 раза превышает
потребление ее теплонасосными установками.
Таблица 1 - Сведения о
некоторых источников низкопотенциальной теплоты (ИНТ)
|
ИНТ |
Среда
промежуточного контура |
Температура
источника,
°С |
|
Грунтовые
воды |
вода |
8..15 |
|
Грунт |
антифриз |
2..10 |
|
Вода
с водозабора |
вода |
6..10 |
|
Речная
вода |
антифриз |
1..10 |
|
Канализационные
стоки |
вода |
10..17 |
|
Окружающий
воздух |
воздух |
-8..15 |
|
Вытяжной
воздух |
воздух |
18..25 |
ТНУ классифицируются следующим образом:
- по принципу действия
и особенностям конструкции: компрессионные, абсорбционные (АТНУ);
- по назначению: для отопления; для отопления
и кондиционирования; для горячего
водоснабжения; для отопления и ГВС; для отопления, ГВС и кондиционирования;
- по схемам включения: одноступенчатые (только
тепловой насос); двухступенчатые
(тепловой
насос с дополнительным источником тепла на топливе или электроэнергии);
многоступенчатые с двумя последовательно включенными ТНУ;
- по использованию природных источников энергии
и сбросного тепла: наружный воздух; поверхностные воды (реки, озера и др.);
подземные (грунтовые) воды; глубинная теплота грунта; гелиоэнергия; отходящее
тепло (воздуха, сбросных вод, обратной сетевой воды, оxлaждaющeй воды ТЭС и
АЭС);
- по источникам затрачиваемой энергии:
электроэнергия; жидкое топливо; природный газ (ПГ); твердое топливо.
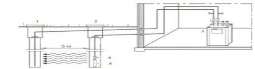
На
рисунке 1 приведена ТНУ,
использующая в качестве низкопотенциального
теплоносителя грунтовые воды.
Контур отбора тепла из водоема может быть
открытым или закрытым. В первом случае вода из водоема перекачивается через
охладитель, охлаждается и возвращается в водоем. Такая система требует
фильтрации подаваемой в охладитель воды и периодической чистки теплообменника. Как
правило, устанавливается промежуточный разборный теплообменник. Забор и возврат
воды должны осуществляться в направлении потока грунтовых вод, чтобы исключить
«байпасирование» воды.
Заборная магистраль должны быть с обратным
клапаном (4), располагаемым в точке забора или после глубинного насоса (5).
Подвод и отвод грунтовых вод к тепловому насосу
должен быть защищен от замораживания и прокладывается с наклоном в сторону
скважины. Расстояние между заборной (2) и возвратной (1) скважинами должно быть
не менее 5 м. Точка выхода воды в возвратной скважине должна быть ниже уровня
грунтовых вод.

1
- возвратная скважина; 2 - заборная скважина; 3 - тепловой насос;
4
– обратный клапан; 5 –глубинный насос
Рисунок 1 - Теплонасосная система
теплоснабжения, использующая
теплоту подземных вод в качестве ВИЭ.
Подземные воды, так же как и поверхностные слои
земли, могут быть использованы в качестве источника тепла для индивидуальных
домов, многоквартирных зданий и районных котельных. Температура подземных вод
обычно является постоянной на глубине 15-20 м, и для большинства климатических
регионов Республики Казахстан
составляет 6-10 °С.
Для извлечения тепла подземных вод используются
обычные методы бурения скважин диаметром 10-20 см, глубиной 50-150 м.
Как и при использовании озерной воды,
применяются два различных принципа сбора тепла. В одном случае замкнутая
трубопроводная система опускается в скважину. В таком коллекторе циркулирует
теплоноситель, который извлекает тепло из подземной воды и переносит его в
испаритель теплового насоса.
Для небольшого теплового насоса мощностью около
10 кВт, который может использоваться для индивидуальных домов, требуется расход
подземного потока около 1-2 м3/час (в зависимости от температуры).
В другом варианте подземная вода закачивается
непосредственно в испаритель, и после охлаждения сбрасывается в специальную
скважину, достаточно далеко от места забора, чтобы исключить охлаждение
источника подземной воды.
На использование грунтовых вод должно быть
получено разрешение соответствующего ведомства (обычно службы госводонадзора).
Для использования тепла грунтовых и подземных вод необходимо построить колодец
и дренаж. Для работы тепловых насосов при определенных условиях могут использоваться
озера и реки, т.к. они тоже выступают в роли аккумуляторов тепла. В этом случае
следует предусмотреть промежуточный контур.
При использовании ТНУ
для отопления и ГВС подача воды осуществляется либо через специальный
теплообменник, либо объединяется с конденсатором и аккумулятором отопительной
установки.
Так как режим работы тепловых
насосов, использующих тепло земли и тепло удаляемого воздуха, постоянный, а
потребление горячей воды переменное, система горячего водоснабжения оборудована
баками-аккумуляторами.
СпИсок литературы
1. Рей Д., Макмайкл Д. Тепловые насосы: Пер. с
англ. - М.: Энергоиздат, 1982. - 224 с.
2.
Обзор рынка тепловых насосов в Швеции,Финляндии. //АВОК, 2002, №1, с.40-41.
3.
Антонио Бриданти. Тепловые насосы в жилых помещениях. // АВОК, 2001, №5,
с.24-32
4.
Петин Ю.М. Опыт десятилетия производства
тепловых насосов в ЗАО
«Энергия».// Энергетическая политика, 2001, Вып.3, с.28-33.