УДК
624.21:620.178
С.С. Хасенов
S.S. Khasenov
ОЦЕНКА ЭФФЕКТИВНОСТИ УСИЛЕНИЯ КОНСТРУКЦИИ ЖЕЛЕЗНОДОРОЖНОГО МОСТА КОМПОЗИТНЫМ
МАТЕРИАЛОМ
EVALUATION REINFORCED CONSTRUCTION OF THE
RAILWAY BRIDGE OF COMPOSITE MATERIALS
АННОТАЦИЯ:
Приведены
результаты натурных испытаний железобетонного пролетного строения моста до
и после усиления
композитным материалом. Показано,
что для достоверной оценки
технического состояния конструкций, усиленных композитами и установления
соответствия между расчетной схемой и действительной работой сооружения,
необходимо осуществлять периодический мониторинг работы сооружения под
эксплуатационными нагрузками.
THE ABSTRACT:
The results of field tests of reinforced concrete superstructure of the bridge before and after amplification by the composite material. It is shown that for a reliable assessment of the technical state of
constructions, reinforced composites
and establishing correspondence between
the calculated and actual scheme of structures, it is necessary to carry out periodic monitoring
of facilities under operational loads.
КЛЮЧЕВЫЕ СЛОВА:
Железобетон, пролетное строение, усиление, композиты, испытания.
KEY WORDS:
Concrete, span,strengthening, composites, durability testing.
В настоящее время существует довольно значительное количество публикаций, посвященных проблеме усиления конструкций композитными материалами [1-5]. Однако критический анализ опубликованных материалов и имеющийся опыт применения композитных материалов для усиления мостовых конструкций позволяет отметить следующее:
- разработанные методики расчета усиления конструкций композитными материалами опираются, в основном, на известный метод расчета по предельным состояниям, который не учитывает того факта, что в подавляющем большинстве конструкций предельное состояние наступает не из-за опасного увеличения нагрузки, а из-за изменения свойств материала усиливаемой конструкции. В методе предельных состояний силовой расчет отделен от деформационного, причем оба эти расчета опираются на разные, нередко взаимоисключающие гипотезы;
- результаты экспериментальных исследований железобетонных конструкций, усиленных композитными материалами нередко не только не совпадают, но даже и противоречат друг другу;
- ни в одной из опубликованных работ не удается найти четкой величины вклада композитного усиления в работу усиливаемой конструкции. Авторы стараются обойти этот вопрос стороной и указывают либо несущую способность только усиленной конструкции, либо отделываются общими словами о том, что использование композитов позволяет усилить конструкцию на 120, 100,80… 10%;
-
пока еще недостаточно данных о работе конструкций, усиленных композитами при
динамическом нагружении (что характерно для транспортных сооружений), при
действии климатических факторов (попеременного замораживания и оттаивания).
Отсутствуют исследования поведения усиленных конструкций во времени (с учетом
эффектов ползучести и релаксации);
- практически
во всех работах рекомендуется способ
усиления с применением композитов, и не отмечаются ошибки, некорректности и нестыковки, которые, несомненно, имеются. И
точно известно, что результаты будут очень сильно зависеть и от применяемых для
усиления материалов, и от качества используемых клеев, и от качества подготовки
поверхности бетона под наклейку и, наконец, от качества выполнения работ и
климатических условий при этом;
Но,
несмотря на сказанное выше, нельзя не
рекомендовать применять композитные материалы для усиления железобетонных, в
том числе и мостовых конструкций.
Наоборот,
их необходимо активно применять и внедрять в практику, но делать это с
соблюдением необходимых правил постановки исследовательских экспериментов, с
описанием всех этапов, нюансов, возникших проблем и путей их решения.
В настоящей статье изложены некоторые результаты натурных испытаний ребристой плиты железобетонного пролётного строения железнодорожного моста с расчетным пролетом 5,5 м, расположенного на участке магистрали Астана-Павлодар, до и после проведения работ по усилению конструкций углеродными лентами FibArm Tape 230/300.
Общий вид моста до усиления представлен на рис. 1, после усиления - на рис. 2.

Рис. 1. Общий вид моста нечетного пути до проведения работ по усилению
Испытания проводились с целью оценки эффективности усиления специалистами аккредитованной испытательной лаборатории «Испытания пути и искусственных сооружений» Казахской академии транспорта и коммуникаций (АО «КазАТК им. М. Тынышпаева») по заказу акционерного общества «Национальная компания «Қазақстан темір жолы» (АО «НК «ҚТЖ»).
Лаборатория
оснащена современными приборами и оборудованием, состоящим из сертифицированных и поверенных средств измерений ведущих
мировых производителей.

Рис. 2. Общий вид моста нечетного пути после проведения работ по усилению
Данное оборудование обеспечивает высокую
степень отказоустойчивости и помехозащищённости используемых средств измерений
и линий связи, возможность расширения конфигурации подключаемых измерительных
устройств (датчиков), возможность применения в системе мониторинга, автоматическое
распознавание и диагностику подключаемых устройств, мобильность, дальность
передачи информации и простоту монтажа (рис. 3).

Рис. 3. Комплект оборудования для тензометрических измерений
В качестве испытательной нагрузки использовался 2-х секционный электровоз ВЛ-80с с паспортной нагрузкой на ось 24тс, являющийся преобладающим средством локомотивной тяговой силы на данном перегоне. При проведении измерений загружение выполнялось в 8 этапов путём последовательного наезда каждой оси локомотива на середину испытываемого пролётного строения (рис.4).
При испытаниях измерялись прогибы и относительные изгибные деформации, возникающие в ребрах плит пролётного строения моста под действием испытательной нагрузки. Измерение прогибов проводилось с помощью российских прогибомеров 6ПАО с точностью до 0,01 мм. Относительные изгибные деформации измерялись тензометрическим методом с помощью японских тензорезисторов FLM-60-11 и германских измерительных усилителей MP55 с точностью до ±1 мкм/м.
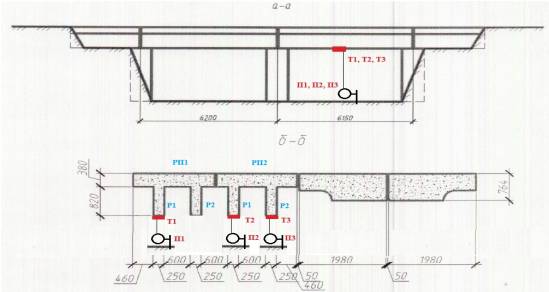
Схема расположения измерительных приборов на конструкциях испытываемого пролётного строения моста показана на рис. 5.

Рис. 4. Испытание конструкций пролётного строения под нагрузкой от осей 2-х секционного электровоза ВЛ-80c, ось №8 на середине ребристой балки

Рис.
5. Схема расположения измерительных приборов на конструкциях испытываемого
пролётного строения моста
РП1 и РП2 -ребристые плиты пролетного
строения моста; Р1 и Р2 - ребра плит;
Т1, Т2, Т3 - тензорезисторы FLM-60-11; П1,
П2, П3 - прогибомеры 6ПАО
Результаты измерений прогибов и относительных изгибных деформаций железобетонного пролётного строения моста под действием испытательной нагрузки до и после проведения работ по усилению конструкций углеродными лентами представлены в таблице 1.
Таблица 1
Результаты измерений при статических испытаниях
|
№ этапа (оси) |
Место проведения измерений |
Измеренный прогиб, мм |
Измеренные изгибные деформации, мкм/м |
||
|
до усиления |
после усиления |
до усиления |
после усиления |
||
|
1 |
2 |
3 |
4 |
5 |
6 |
|
1 |
РП1Р1 |
0,52 |
0,53 |
12 |
13 |
|
РП2Р1 |
0,71 |
0,72 |
27 |
28 |
|
|
РП2Р2 |
0,82 |
0,83 |
49 |
50 |
|
|
2 |
РП1Р1 |
0,54 |
0,55 |
14 |
15 |
|
РП2Р1 |
0,90 |
0,89 |
30 |
31 |
|
|
РП2Р2 |
0,92 |
0,91 |
42 |
43 |
|
|
3 |
РП1Р1 |
0,50 |
0,51 |
13 |
14 |
|
РП2Р1 |
0,91 |
0,90 |
31 |
32 |
|
|
РП2Р2 |
0,99 |
0,98 |
47 |
48 |
|
|
4 |
РП1Р1 |
0,56 |
0,55 |
14 |
15 |
|
РП2Р1 |
0,89 |
0,88 |
30 |
31 |
|
|
РП2Р2 |
0,95 |
0,94 |
46 |
46 |
|
|
5 |
РП1Р1 |
0,59 |
0,58 |
14 |
15 |
|
РП2Р1 |
0,96 |
0,95 |
34 |
35 |
|
|
РП2Р2 |
1,09 |
1,08 |
45 |
46 |
|
|
6 |
РП1Р1 |
0,55 |
0,56 |
11 |
12 |
|
РП2Р1 |
0,86 |
0,85 |
25 |
26 |
|
|
РП2Р2 |
0,96 |
0,95 |
43 |
44 |
|
|
7 |
РП1Р1 |
0,50 |
0,51 |
10 |
11 |
|
РП2Р1 |
0,77 |
0,78 |
27 |
28 |
|
|
РП2Р2 |
0,91 |
0,90 |
43 |
44 |
|
|
8 |
РП1Р1 |
0,56 |
0,55 |
11 |
12 |
|
РП2Р1 |
0,86 |
0,86 |
29 |
30 |
|
|
РП2Р2 |
0,90 |
0,89 |
52 |
53 |
|
В научно-исследовательских целях производились записи изгибных деформаций железобетонного пролётного строения моста под действием фактически обращаемой подвижной нагрузки. При проходе одиночного локомотива ВЛ80c со скоростью 80 км/ч, максимальные изгибные деформации в тех же контрольных точках, соответственно, были равны 13, 32 и 47 мкм/м.
Следует отметить, что при проходе по пролетному строению одиночного двухсекционного локомотива КZ-8A со скоростью 80 км/ч, измеренные максимальные изгибные деформации в контрольных точках составили, соответственно, 15, 39 и 52 мкм/м, и незначительно превысили соответствующие деформации при проходе одиночного локомотива ВЛ80c с той же скоростью. Превышение вызвано большей нагрузкой на ось локомотива (для электровоза КZ-8A паспортная нагрузка на ось составляет 25тс).
За весь период наблюдений, наибольшее значение максимальной изгибной деформации (86 мкм/м) было зафиксировано в точке РП2Р2 при пропуске сборного грузового состава (рис. 6).

Рис. 6. Диаграммы изгибных деформаций при проходе сборного грузового состава
С целью дальнейшего проведения периодического мониторинга эффективности усиления при действии климатических факторов (попеременного замораживания и оттаивания) и подвижных нагрузок, произведена защита установленных на конструкции тензометрических датчиков от внешних воздействий окружающей среды (рис. 7).
|
а) |
б) |
Рис. 7. Тензорезисторы FLM-60-11 на нижних гранях ребер плит
а) до проведения работ по усилению
углеродными лентами;
б) после проведения работ по усилению
углеродными лентами (с защитным покрытием от климатических воздействий)
ВЫВОДЫ:
Из анализа результатов статических испытаний, представленных в таблице 1, можно сделать вывод, что, в данном конкретном случае, усиление пролётного строения моста углеродными лентами FibArm Tape 230/300 не привело к увеличению изгибной жёсткости (произведение общего модуля упругости материала на момент инерции сечения) железобетонного пролётного строения моста. Измеренные от испытательной нагрузки прогибы и относительные изгибные деформации до и после усиления равнозначны, незначительные расхождения находятся в пределах точности проведения измерений.
Для достоверной оценки фактического технического состояния конструкций, усиленных композитами, степени влияния композитного материала на несущую способность конструкции в целом, и установления соответствия между расчетной схемой и действительной работой сооружения, целесообразно осуществлять периодический комплексный мониторинг работы сооружения от воздействия климатических факторов и эксплуатационных нагрузок с использованием компьютерных измерительных комплексов и систем.
СПИСОК ЛИТЕРАТУРЫ
1.
Бокарев С.А., Смердов Д.Н. Экспериментальные исследования изгибаемых
железобетонных элементов, усиленных КМ//Известия Вузов. Стр-во. 2010, №2,
с.112-124.
2.
Белан Е.С., Смердов Д.Н., Яшнов А.Н. Составные конструкции железобетонных
пролетных строений и методы их расчета//Современное состояние и инновации транспортного
комплекса. Материалы Междунар. научн.-техн. конф. Пермь. Изд-во ПГТУ. 2009,
т.2. С. 49-56.
3. Гапонов
В.В. Экспериментальные исследования усиления плит перекрытия коллекторных
тоннелей сетками из углеродных волокон в матрице на минеральной основе//Журнал
«Промышленное и гражданское строительство». 2011. - №11. – С. 69-71.
4.
Гапонов В.В. Усиление изгибаемых железобетонных конструкций подземных
сооружений композиционными материалами//Горный информационно-аналитический
бюллетень. – 2011. - №12. – С.238-246.
5.
Смердов Д.Н. Оценка несущей способности железобетонных пролетных строений
мостов, усиленных композитными материалами. автореф. канд. дисс. Новосибирск.
СибГУПС. 2010. 24 с.