Технічні науки/ 5.Енергетика
К.т.н. Нестерчук Д.М., магістрант Тіпенко А.Ю.
Таврійський
державний агротехнологічний університет, Україна
До
питання удосконалення електромагнітного витратоміра
технологічних
рідин
Існує велика
кількість витратомірів, але з них найбільше розповсюдження отримали
електромагнітні витратоміри, в яких електрорушійна сила визначається шляхом
вимірювання різниці потенціалів між двома електродами, які знаходяться в
рідині. Витратоміри та лічильників кількості рідини – це прилади, які
призначені для вимірювання витрати рідини, без яких неможливо забезпечити
оптимальні технологічні режими процесів виробництва та їх автоматизацію. Сучасний
розвиток цифрової мікросхемо техніки дозволяє розробляти та впроваджувати електромагнітні
витратоміри з вторинними мікропроцесорними блоками реєстрації вимірювальної
інформації щодо миттєвої витрати рідини та сумарної об’ємної витрати.
Таким чином,
стає доцільним удосконалення вторинного модуля вимірювання та реєстрації витрати
рідини у складі електромагнітного витратоміру.
Аналіз
літературних джерел [1, 2] показав, що область застосування електромагнітних
витратомірів достатньо велика, так як завдяки конструкції електромагнітного
первинного вимірювального перетворювача витрати, як складової електромагнітного
витратоміра, вони придатні для вимірювання витрати рідини, у яких питома
електрична провідність не менш, ніж 10-3 См/м, а саме, для вимірювання
витрати водопровідної води, лугів, кислот, соків, сиропів та інших рідин харчовій
промисловості та стічних рідин.
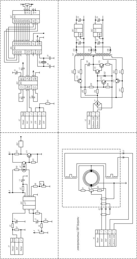
На рисунку 1
наведена схема електрична структурна електромагнітного витратоміра з
удосконаленою схемою мікропроцесорного вторинного модуля вимірювання та реєстрації
витрати рідини.

Рисунок
1 - Схема електрична структурна електромагнітного витратоміра
Електромагнітний витратомір складається
з електромагнітного первинного вимірювального перетворювача витрати та з мікропроцесорного
вторинного модуля вимірювання та реєстрації витрати. Слід відзначити, що
основою принципу дії електромагнітного первинного вимірювального перетворювача (ПВП)
витрати є взаємодія рідини, що рухається, з магнітним полем згідно закону електромагнітної
індукції. [2].
На рисунку 2 наведена конструктивна схема
електромагнітного (ПВП) витрати.
1 – труба з ізоляційного матеріалу; 2 – полюси
магнітної системи;
3 – обмотка електромагніту; 4 – два електроди;
5 – додаткова обмотка
Рисунок 2 -
Конструктивна схема електромагнітного ПВП витрати
Як видно з рисунка 1, мікропроцесорний
вторинний модуль вимірювання та реєстрації витрати рідини складається з
перетворювача «струм - частота», з блоку гальванічної розв’язки, з мікроконтролера,
з блоку цифрової індикації та з блоку обміну
даних з комп’ютером.
Призначення кожного з блоків мікропроцесорного
вторинного модуля вимірювання та реєстрації витрати рідини наведене в таблиці
1.
Таблиця 1 – Призначення блоків
|
Найменування блоку модуля |
Призначення блоку |
|
Перетворювач «струм - частота» |
Лінійне перетворення сигналу постійного струму
(0...5 mА) в імпульсний сигнал
з відповідною частотою. |
|
Блок гальванічної розв’язки |
Ізоляція електричного сигналу мікропроцесорного
вторинного модуля вимірювання реєстрації витрати від вихідних кіл електромагнітного
ПВП витрати. |
|
Мікроконтролер |
Вимірювання частоти імпульсів, яка пропорційна
миттєвій витраті та інтегрування цього сигналу за часом з метою отримання
сумарної об’ємної витрати рідини, а також здійснює формування сигналу, який
надходить до блоку цифрової індикації. |
|
Блок цифрової індикації |
Відображення як миттєвого значення витрати рідини,
так й сумарної об’ємної витрати у цифровому коді. |
|
Блок обміну даних з комп’ютером |
Передача інформації про миттєве значення витрати рідини та про
сумарну об’ємну витрату до комп’ютера. |
На рисунку 3
наведена схема електрична принципова блоків електромагнітного витратоміра.
Вхідний струм перетворювача «струм - частота» з електромагнітного ПВП витрати
після обробки та перетворення в падіння напруги на резисторі R2 надходить на інтегральний перетворювач на
базі мікросхеми DD1. Зазначена мікросхема DD1 перетворює падіння напруги в частоту. Гальванічна
розв’язка реалізована на оптичній
передачі імпульсного сигналу за допомогою
оптопари U1. Світлодіод оптопари U1, який з’єднаний послідовно з резистором R10
та підключений до виходу 6 мікросхеми DD1, створює світловий потік, що
передається до фототранзистора оптопари U1. Транзисторний ключ VT1 забезпечує прямокутну
форму вихідного сигналу з оптопари U1.
Робота
мікроконтролера DD4 заснована на тім, що імпульсний сигнал з виходу інвертора
DD2 подається до входу 11 мікроконтролера DD4. Мікроконтролер визначає час між
передніми фронтами двох послідовних імпульсів, що надходять до входу 11
мікроконтролера DD4. За цим часом визначається частота імпульсів, яка є
пропорційною миттєвій витраті рідини.
Також функція мікроконтролера
– це чисельне інтегрування миттєвої витрати за часом та зберігання цього
значення у постійній пам’яті мікроконтролера, що перезаписується. На елементах
С8, С9 та ZQ1 реалізована схема тактового генератора мікроконтролера. Схема
тактового генератора підключається до входів 4 та 5 мікроконтролера DD4.
Блок цифрової індикації реалізований на
рідкокристалічному алфавітно-цифровому індикаторі HG1, який відображає до 16
символів в двох строках. Для передачі даних від мікроконтролера DD4 до
індикатора HG1 призначена 8 - бітна шина даних, яка з’єднує порт вводу - виводу
мікроконтролера DD4 РВ0...РВ7 з портом даних індикатора DB0...DB7. Сигнали
керування індикатором HG1 (RS, R/W, Е) подаються від виходів PD2.. PD4 мікроконтролера
DD4. Резистор R14 використовується для регулювання інтенсивності підсвічування
індикатора HG1.
Особливістю
мікропроцесорного вторинного модуля вимірювання та реєстрації є можливість
зв’язку з персональним комп'ютером за протоколом RS232. З цією метою сигнал від
асинхронного прийомо-передатчика, виходи якого 2
та 3 мікроконтролера DD4, через перетворювач рівнів сигналу на базі мікросхеми
DD3 подається до стандартного роз’єму СОМ - порту Х2.
Особливістю
блоку живлення є те, що трансформатор TV1 має дві вторинні обмотки. Напруга з
першої вторинної обмотки трансформатора TV1, яка приблизно дорівнює приблизно 7
В, надходить для живлення електричних кіл до гальванічної розв’язки на оптопарі
U1. Ця напруга після випрямлення діодами VD3 та VD4, згладжується конденсатором
С11 та стабілізується інтегральним стабілізатором DA1. Конденсатор С13 знижує
рівень високочастотних пульсацій. Напруга з другої вторинної обмотки
трансформатора TV1 надходить для живлення електричних кіл після оптопари U1. Ця
напруга випрямляється діодами VD5 та VD6, згладжується конденсатором С12 та
стабілізується інтегральним стабілізатором DA2. Конденсатор С14 знижує рівень
високочастотних пульсацій. [3].
Розрахунок показників надійності мікропроцесорного
вторинного модуля вимірювання та реєстрації витрати рідини згідно [4, 5]
показав, що інтенсивність відмов дорівнює 0,0000877 1/год, час роботи до відмови складає 11403 години, а ймовірність
безвідмовної роботи дорівнює 0,991.
Таким чином, запропоноване
удосконалення схеми мікропроцесорного вторинного модуля вимірювання та
реєстрації витрати рідини електромагнітного витратоміра дозволить надавати
достовірні дані щодо результатів вимірювання миттєвої витрати та сумарної
об’ємної витрати технологічної рідини.
Література:
1. Кремлевский П.П.
Расходомеры и счетчики количества. / П.П. Кремлевский. – Л.: Машиностроение,
1975. – 776 с.
2. Измерения в
промышленности: Справочное издание / Под ред. П.Профоса: пер.с нем. – М.:
Металлугрия, 1980. – 648 с.
3. Практическая
схемотехника: 450 полезных схем радиолюбителям. – М.: Додека, 2007. – 360 с.
4. Острейковский В. А. Теория надежности: учеб. для вузов / В. А. Острейковский. – М.: Высшая школа, 2003. – 463 с.
5.
Мартыненко И.И. Проектирование систем
автоматики. / И.И.Мартыненко, В.Ф.Лысенко. – М.: Агропромиздат, 1990. – 243 с.