Строительство и архитектура/1.
Архитектурные решения объектов строительства и реконструкции
Д.т.н,
профессор Семко А.В., к.т.н., доцент Филоненко Е.И.
Полтавский
национальный технический университет имени Юрия Кондратюка, Украина
Исследование принципов интеграции экопоселений на территории
Украины
Стратегия развития экопоселений одобрена ООН и
направлена на достижение гармонии между людьми, обществом и природой.
Экопоселения представляет собой территорию с
домами из экологически чистых материалов, необходимой инфраструктурой,
сооружениями и территориями общего пользования. Экопоселения имеют свои Уставы,
которые запрещают нанесение ущерба природе, соблюдение общей эстетики
поселения, некоторые внутренние правила и т.п.
Для экопоселений характерна компактная
планировочная структура, максимально вписанная в природный каркас. Застройка
малоэтажная, как правило, 1 - 3 этажа, модульная или свободная, подчиненная
ландшафту. Жилье экологически чистое из природных возобновляемых строительных
материалов: дерева, самана, растительных покровов, тростника, бамбука, камня,
земли, песчаника, соломы, глина. Екожильё
должно быть комфортным, энергоэффективным и экономически доступным,
обеспечивать гармонизацию жизненного пространства и минимальную нагрузку на
природную среду.
В Украине существует несколько направлений
интеграции экопоселений в сложившуюся систему расселения: в структуре
национальных и природных парков, на территории природных комплексов, в системе
сельского расселения, в структуре городской застройки, в структуре сельского
населенного пункта
Разработан проект экопоселения в Сумской
области. Сложная мозаичная структура ландшафта где лесные массивы, пастбища,
луга, поля чередуются с озером, заболоченными территориями, обусловила
свободное размещение жилых образований в с. Чупаховка. Они органично вписались
в природный каркас. Связь между жилыми образованиями села и другими селами
осуществляется сетью грунтовых дорог.
С учетом профильно-хозяйственной деятельности
существующего села предусмотрены земледелие, животноводство, рыболовство,
выращивание лекарственных растений и трав, а также оздоровительный отдых.
Запроектировано 37 участков для застройки,
каждый дом имеет собственный участок, предназначенный для ведения сельского
хозяйства, отдыха и досуга. Участки отделены друг от друга живой изгородью,
которая создает оптимальный микроклимат. Предложено четыре типа домом: из
соломы, из деревянных бревен, из самана и кирпичный дом с зеленой крышей (рис.1, 2)

Рис. 1 Кирпичный частный
дом с зеленой крышей, фасад.

Рис. 2 Частный дом из
деревянных колод, фасад.
Допускается передвижение
на экологически чистых видах транспорта: эко-мобили, велосипеды,
«этнографический» транспорт. Владельцам традиционных видов транспорта
предлагается оставлять свои транспортные средства в экотерминале, расположенном
во въездной зоне экопоселения.
Рассмотрена возможность
использования возобновляемых источников энергии - ветряные электростанции,
тепловые насосы, солнечные батареи. Предложено маломощный ветрогенератор до 1
кВт с вертикальной осью, который работает от слабых ветров всех направлений и
геотермальный тепловой насос с размещением коллектора кольцами или волнисто в
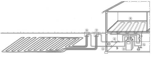
горизонтальных траншеях ниже глубины промерзания грунта (рис.3).

Рис.
3 Конструкция теплового насоса.
1 - подающий
трубопровод; 2 - обратный трубопровод; 3 - тепловой насос; 4-низкотемпературная
отопительная установка; 5-подача теплоносителя в систему отопления; 6 -
подающий грунтовой коллектор; 7 - обратный грунтовой коллектор.
В наше время
человечество озабочено проблемами своего здоровья и загрязнения окружающей
среды. Строительство экопоселений даст возможность изменить качество жизни,
гармонично вписать ее в природу.
Литература:
1. Бондаренко О. И., Савицкий Н. В., Бендерський Е. Б., Руднева М. Ю. Принципы
интеграции экопоселений в систему сельского расселения.//Сб.т.п.:
Строительство, материаловедение, машиностроение. – Д.: ГВУЗ ПГАСА, 2013.
2. Куличенко І. І., Савицький М. В., Складовський М. Г., Сучасне екопоселення: якість життя.//Сб.т.п.:
Строительство, материаловедение, машиностроение. – Д.: ГВУЗ ПГАСА, 2013.
3. Jan
Martin Bang,
Ecovillages: A Practical Guide to Sustainable Communities. - Floris,
2005.