Мельник В.М.

Національний технічний університет України «КПІ»

ІНТЕНСИФІКАЦІЯ ТУРБУЛЕНТНОСТІ БІОМАСИ У ФЕРМЕНТЕРІ

Пропонуєме технічне рішення відноситься до біотехнології і може бути використаним в мікробіологічній, харчовій промисловостях, а також для потреб медицини і клінічних досліджень при культивуванні клітин або тканин.

Відома установка для культивування мікроорганізмів, яка містить з’єднані між собою в нижній частині еластичним трубопроводом дві камери з повітряними фільтрами і реверсивний привод для звортно-поступального переміщення камер в вертикальній площині [А.С. СССР № 1131899, С 12 М 1/00, 1984].

Недолік цієї установки полягає у великих габаритах, що обумовлено необхідністю переміщення камер у вертикальній площині.

Відомий також апарат для культивування клітин (АК), який містить корпус з технологічними патрубками і розміщений по осі корпусу пустотілий вал імпульсного привода з втулкою, до якої приєднаний перемішуючий елемент у формі чотирьохланцюгового шарніра з лопатками на кінцях, з’єднаний з порожниною вала і рухомою втулкою шарніра фільтруючий елемент, а також аератор [ А.с. СССР №1633814, С 12 М 3/00, 1995].

Недолік відомого АК полягає в низькій продуктивності.

Крім цього, відомий АК має складну конструкцію, що є іншим його недоліком.

В основу пропонуємого технічного рішення покладена задача вдосконалення АК, в якому шляхом модифікації форми і руху перемішуючого елемента забезпечується більш активне перемішування без ризику пошкодження клітин, що приводить до зростання продуктивності при одночасному спрощенні конструкції.

Поставлена задача вирішується тим, що в АК, який містить циліндричний корпус з технологічними патрубками, розміщений вздовж осі корпусу вал з втулкою, до якої приєднаний перемішуючий елемент, аератор, а також реверсивний привод новим є те, що контактуючі між собою поверхні вала і втулки виконано у вигляді, наприклад, гвинтової пари, а перемішуючий елемент має форму диска, на ободі якого через рівні кутові проміжки зроблені півкруглі виточки однакового радіуса (наприклад, вісім) і який убезпечено від обертання вертикальною напрямною.

Вказана відмінність дозволяє активізувати центральну зону робочого об’єму корпуса 1 і інтенсифікувати процес перемішування всієї біомаси без ризику пошкодження клітин, що підвищує продуктивність культивування, тобто збільшує вихід пробіотиків до складу котрих входять живі клітини продуцентів. Одночасно з цим спрощується конструкція, оскільки перемішуючий елемент має досить просту і надійну в роботі геометричну форму.

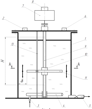
На рисунках схематично зображений пропонуємий АК в поздовжньому перерізі (рис. 1) і поперечному перерізі А-А (рис. 2).

АК містить циліндричний корпус 1 з патрубком 2 для введення живильної рідини і посівного матеріалу, патрубком 3 з аератором 4, патрубком 5 для видалення культуральної рідини і патрубком 6 для відведення відпрацьованого газу. Вздовж осі корпусу 1 розташований приєднаний до мотор-редуктора 7 з командним реверсуючим пристроєм 8 вал 9 з втулкою 10, на якій розташований перемішуючий елемент у формі встановленого із зазором “δ” відносно стінок корпусу 1 диска 11, на ободі якого через рівні кутові проміжки зроблені напівкруглі виточки 12 однакового радіуса (наприклад, вісім). Контактуючі між собою поверхні вала 9 і втулки 10 виконані у вигляді гвинтової пари, а диск 11 має закріплену в корпусі 1 вертикальну напрямну 13.

Працює АК наступним чином. В попередньо простерилізований АК до корпусу 1 вводять через патрубок 2 живильну рідину і посівний матеріал (інокулят), після чого в аератор 4 подають газ для аерації культурального середовища і вмикають командний пристрій 8, за сигналом якого приходить в дію мотор-редуктор 7 і вал 9, який в межах заданого командним пристроєм 8 ходу “Н” надає зворотно-поступального руху втулці 10 і, приєднаному до неї, і убезпеченого напрямною 13 від обертання, диску 11.

Рухаючися вздовж вала 9, диск 11 спричиняє перетіканню біомаси крізь зазор “δ” по висоті корпуса 1, а також в поперечних напрямках 14 з периферійної частини робочої рідини до центру корпуса 1, і навпаки, в залежності від напряму руху диска 11, тобто із зони збільшеного тиску в зону зниженого тиску, активізуючи тим самим робочу рідину по всьому об’єму, внаслідок чого інтенсифікується процес перемішування завдяки підвищеній турбулізації і зростає продуктивність культивування клітин за повної відсутності ризику їх пошкодження. Цьому сприяє також відсутність обертального руху диска 11, що має місце в прототипі.

По закінченні процесу культивування виключається командний пристрій 8 і зупиняється мотор-редуктор 7, а готовий для подальшого використання продукт зливається крізь патрубок 5.

            

 

                          Рис. 1                                                          Рис. 2.