Технические
науки/10. Горное дело
УДК
622. 274. 53:622. 063. 44:622. 234. 5
К.т.н Тарасютин В.М., маг. горного дела Косенко А.В.
ГВУЗ «Криворожский национальный университет», Украина
Разработка рациональных вариантов ресурсосберегающей технологии очистной
выемки залежей богатых железных руд шахт с использованием самоходного горного
оборудования
В настоящее время разработка залежей
природно-богатых железных руд на подземных рудниках Кривбасса осуществляется на
глубине 1000-1300 м под действием гравитационно-тектонических полей напряжений.
Рудные залежи представлены, в основном,
мартитовыми и железо-слюдко-мартитовыми мелкокристаллическими рудами, с сильно
выраженной трещиноватой и слоистой текстурой, низкой крепости (от f = 2-4 до f
= 5-6) и устойчивости. Угол падения залежей изменяется от 35-45° до 46-60°.
Для
разработки запасов рудных залежей, в основном, применяются подэтажно-камерная
системы разработки и подэтажного обрушения. При этом наблюдается тенденция
перехода с глубиной на системы подэтажного обрушения, которые характеризуются низкими показателями извлечения.
При этих системах подготовительно-нарезные
и очистные блоки отрабатываются с применением морально устаревшего
малопроизводительного горного оборудования в опасных и весьма
неудовлетворительных санитарно-гигиенических условиях труда. В целом
конструкции систем разработки весьма сложны и характеризуются: повышенным
расходом (до 13 м/1000 т) подготовительно-нарезных выработок и трудоемкостью их
проходки, которая составляет 40-45% от затрат по системе разработки;
трудоемкостью выпуска и доставки руды – 30-40% от затрат по системе разработки;
низким уровнем механизации труда – 33-45%; низкой производительностью труда
рабочего по системе разработки – 27- 43 т/чел.·смену.
В
результате выполненных исследований установлено, что наиболее трудоемкими
видами работ являются горнопроходческие и очистные работы, трудоёмкость которых
зависит от конструктивно-технологических решений и применяемой горной техники,
что обуславливает снижения полноты извлечения (потери 17-18%) и качества
обрушенной рудной массы (разубоживание 10-12%).
Конструктивно-функциональный и
технико-экономический анализ системы разработки с обрушением руд и вмещающих
пород показал, что резервы дальнейшего конструктивного и технологического
совершенствования очистной выемки железных руд средней и ниже средней крепости
и устойчивости на основе применения стационарного и переносного проходческого,
бурового и доставочного оборудования в условиях глубоких горизонтов шахт
комбината практически исчерпаны.
Сложные инженерно-геологические условия
эксплуатации залежей, а также жёсткие экономические ограничения вызывают
необходимость разработки и освоения инновационных технологий выемки железных
руд на принципиально новых, отличных от традиционных, основах. Эффективную
разработку залежей возможно осуществить технологиями очистной выемки с массовым
обрушением запасов выемочных единиц на базе высокопроизводительного самоходного
оборудования, обеспечивающего рациональные технико-экономические показатели
горных работ.
Установлено, что параметры
ресурсосберегающих технологических схем процессов очистной выемки богатых
железных руд системы подэтажного обрушения определяются горно-геологическими,
горнотехническими и горногеомеханическими условиями глубоких горизонтов
железорудных шахт, типом применяемой геотехнологии и интенсивностью ведения очистных работ.
На основании конструктивно-функционального
анализа существующих технологий очистной выемки железных руд ниже средней
крепости и устойчивости, геомеханического анализа условий разработки глубоких
горизонтов шахт Кривбасса, моделирования на эквивалентных материалах,
технико-экономических расчетов разработаны рациональные варианты системы
подэтажного обрушения (рис. 1, 2) с отбойкой руды вертикальными веерами
глубоких скважин оптимальной длины и ориентации при различных объёмах
компенсационного пространства, интенсивным равномерным режимом выпуска руды и
высокопроизводительной комбинированной «скреперные установки – самоходная
погрузочно-доставочная машина» доставкой рудной массы для выемочных единиц,
представленных рудами средней и ниже средней крепости и устойчивости,
залегающих в сложных геомеханических условиях глубоких горизонтов шахт,
обеспечивающих безопасную, экономичную и рациональную отработку запасов
месторождений.

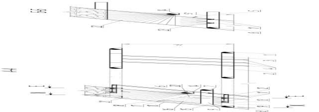
Рис. 1 а –
Разрезы в крест простирания технологической схемы варианта системы подэтажного
обрушения с использованием самоходного оборудоваения при отработке залежей
богатых железных руд на глубоких горизонтах шахт

Рис. 1 б – Вертикальные разрезы технологической
схемы варианта системы подэтажного обрушения с использованием самоходного
оборудоваения при отработке залежей богатых железных руд на глубоких горизонтах
шахт

Рис. 1 в – Планы технологической
схемы варианта системы подэтажного обрушения с использованием самоходного
оборудоваения при отработке залежей богатых железных руд на глубоких горизонтах
шахт
Таблица 1 – Условные обозначения на чертежах варианта системы
подэтажного обрушения с применением самоходного оборудования
|
№ позиции |
Наименование позиции |
|
1 |
Хозяйственно-транспортно-вентиляционный штрек |
|
2 |
Разгрузочно-транспортно-хозяйственный орт |
|
3 |
Узел разгрузки рудной массы |
|
4 |
Система капитальных рудо-перепускных восстающих |
|
5 |
Погрузочно-транспортно-хозяйственный орт |
|
6 |
Вентиляционный сборочный восстающий |
|
7 |
Транспортно-хозяйственный штрек |
|
8 |
Подсечной штрек |
|
9 |
Компенсационный орт |
|
10 |
Отрезной восстающий |
|
11 |
Штрек-скреперования |
|
12 |
Вентиляционный орт |
|
13 |
Выпускная ниша |
|
14 |
Буровой штрек |
|
15 |
Вертикальные веера глубоких скважин для
формирования отрезной щели |
|
16 |
Наклонные веера глубоких скважин для формирования
компенсационной камеры |
|
17 |
Контур отрезной щели |
|
18 |
Контур компенсационной камеры |
|
19 |
Пучок штанговых шпуров для формирования выпускной
воронки |
|
20 |
Наклонный веер глубоких скважин для отбойки
основного запаса панели |
|
21 |
Вертикальный веер глубоких скважин для отбойки
основного запаса панели |
|
22 |
Веер глубоких скважин для отбойки запаса целика |
|
23 |
Пучок глубоких скважин (штанговых шпуров) для
формирования выпускной воронки |

Рис. 2 а – Разрезы в крест простирания технологической
схемы камерного варианта системы подэтажного обрушения с использованием
самоходного оборудоваения при отработке залежей богатых железных руд на
глубоких горизонтах шахт

Рис. 2 б –
Вертикальные разрезы технологической
схемы камерного варианта системы подэтажного обрушения с использованием
самоходного оборудоваения при отработке залежей богатых железных руд на
глубоких горизонтах шахт

Рис. 2 в –
Планы технологической схемы камерного
варианта системы подэтажного обрушения с использованием самоходного
оборудоваения при отработке залежей богатых железных руд на глубоких горизонтах
шахт
Основные конструктивные, технологические и
технико-экономические показатели разработанных вариантов технологии: упрощение
конструкции и снижение расходов подготовительно-нарезных выработок на 2-7 м3/1000
т запаса; повышение производительности труда на 20-33 т/чел.-смену; снижение
потерь на 12-17%, снижение разубоживания на 3-5% и повышение качества рудной
массы на 0,7-1,1%; снижение себестоимости на 2-5%.
Экономическая эффективность результатов
работы составляет 69-94 грн/т.
Варианты системы разработки могут
применяться при рабочем проектировании отработки наклонных и крутопадающих
средней мощности залежей богатых железных руд на глубоких горизонтах шахт
Кривбасса.
Преимуществом
разработанных вариантов технологии является то, что при отсутствии самоходной
проходческой и буровой техники горные работы могут осуществляется с помощь
переносного горного оборудования.
Таблица 2 – Условные обозначения на чертежах камерного варианта системы
подэтажного обрушения с применением самоходного оборудования
|
№ позиции |
Наименование позиции |
|
1 |
Хозяйственно-транспортно-вентиляционный штрек |
|
2 |
Разгрузочно-транспортно-хозяйствннный орт |
|
3 |
Узел разгрузки рудной массы |
|
4 |
Система капитальных рудоперепускных восстающих |
|
5 |
Погрузочно-транспортно-хозяйственный орт |
|
6 |
Вентиляционный сборочный восстающий |
|
7 |
Транспортно-хозяйственный
штрек |
|
8 |
Подсечной штрек |
|
9 |
Отрезной восстающий |
|
10 |
Буровой орт |
|
11 |
Штрек-скреперования |
|
12 |
Вентиляционный орт |
|
13 |
Выпускная ниша |
|
14 |
Буровой штрек для разбуривания запаса потолочины |
|
15 |
Вертикальные веера глубоких скважин для
формирования отрезной щели |
|
16 |
Контур отрезной щели |
|
17 |
Наклонные веера глубоких скважин для отбойки
камерного запаса |
|
18 |
Пучок штанговых шпуров для формирования выпускной
воронки |
|
19 |
Веер скважин для отбойки запаса потолочины |
|
20 |
Круговой веер глубоких скважин для отбойки
запасов междукамерного целика |
|
21 |
Пучок глубоких скважин (штанговых шпуров) для
формирования выпускной воронки |
Разработанные конструкции вариантов системы подэтажного обрушения
является гибкими, и позволяют переходить на участках неустойчивых и
мало-прочных руд от схем камерных вариантов (рис. 2) к вариантам массового
обрушения (рис. 1) без существенного изменения технико-экономических
показателей.