Профессор, д.т.н., Генбач А.А., ассистент, магистр наук., Байбекова В.О.
Алматинский университет энергетики и
связи
ГОРЕЛКА ДЛЯ ЭНЕРГЕТИЧЕСКИХ УСТАНОВОК С ДУГООБРАЗНОЙ ПОРИСТОЙ КАНАВКОЙ
Разработка различных
интенцификаторов теплообмена для
охлаждения камер сгорания и сопел
производилась на огнеструйной горелке
ракетного типа с пористой системой охлаждения (рис.1 ),
[1-3]. Исследовались камеры сгорания
и сверхзвуковые сопла вплоть до их разрушения (рис.2), [4-6] .

Рис.1.
Общий вид экспериментальной установки, выполненной в виде горелки ракетного
типа с пористой системой охлаждения.
Дальнейшим развитием систем охлаждения камер сгорания и сверхзвуковых
сопел, особенно для высокофорсированных режимов их работы, послужило то
обстоятельство, что основным недостатком горелки является невысокий ресурс
работы вследствие низкой надёжности системы охлаждения, особенно в
высокотеплонапряжённой зоне критического сечения и диффузорной части сопла Лаваля в результате следующих причин [7-8].
В узких каналах охладителя, образованных кожухом и камерой сгорания с
соплом, возникают паровые пузыри в момент локального закипания охладителя,
которые закупоривают каналы, нарушаются теплогидравлические характеристики
системы охлаждения, что приводит к возникновению кризиса теплопередачи и
пережогу стенки камеры сгорания и сопла Лаваля (первая причина и недастаток).
Но даже если избежать локального закипания жидкости за счёт подачи весьма её
большого количества, что и происходит на практике, то вследствие неравномерного
процесса охлаждения, особенно начиная с зоны критического сечения по ходу
движения продуктов сгорания, возникают циклические резкопеременные тепловые
напряжения в стенке, приводящие к малоцикловой
термической усталости материалов и небольшому сроку службы (до 500 часов
работы) (вторая причина и недостаток).
При этом требуется подавать весьма большие количество охладителя, равные
0,1 кг/с и более, под давлением 0,5
МПа, что приводит к большому перерасходу
воды, электроэнергии и требует повышенного внимания за эксплуатацией
насоса (третья причина и третий недостаток).
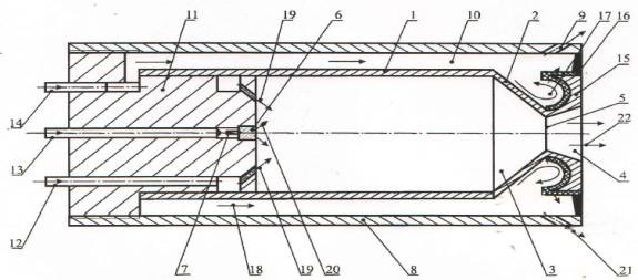
Горелка (рис.2) содержит устанавленные в кожухе 8 камеру сгорания 1,
сопло Лаваля 2 с конфузорной 3 и диффузорной 4 частями и критическим сечением 5 между ними, завихритель 6,
распылитель 7 и распределительную
головку 11 с патрубками 12, 13, 14 подвода окислителя 19 и
горючего 20 в камеру сгорания 1 и
охладителя 18 в охлаждающую полость 10,
образованную между кожухом 8 и внешними
стенками камеры сгорания 1 и сопла Лаваля 2. В кожухе 8 выполнены отверстия 9, 21 для отвода охладителя 18.
Диффузорная часть 4 сопла Лаваля 2 снабжена вставкой 15, имеющей со стораны,
обращенной к охлаждающей полости
10, капиллярно – пористое покрытие 16.
Капиллярно – пористое покрытие 16 выполнено из многослойной сетки, размер
ячеек в каждом из слоев которой возрастает по направлению к внешней поверхности
покрытия и составляет 0,08; 0,14 и 1,0 мм.
Радиус кривизны канавки 17 в
2,5 – 5 раз больше ее глубины.
Продукты сгорания 22 отводятся из диффузорной части 4 сопла 2.
Охладитель 18 подают в патрубок 14, выходя из которого охладитель
перемещается в охлаждающей полости 10, образованной между кожухом 8 и внешними
стенками камеры сгорания 1 и сопла Лаваля 2, состоящего из конфузорной 3 и
диффузорной 4 частей, разделенных критическим сечением 5. Охладитель омывает
стенки камеры сгорания 1 и сопла 2, отбирая теплоту и охлаждая последние ,
после чего выбрасывается наружу через
отверстия 9 и 21. Теплота в камере сгорания 1 выделяется за счет
сжигания горючего 20, подаваемого в патрубок 13, которое идет в распылитель 7,
закручивается в завихрителе 6 и направляется в камеру сгорания 1. Одновременно
подают окислитель 19 через патрубок 12, расположенный как и патрубки 13 и14 в
распределительной головке 11. Окислитель 19 смешивается с горючим 20,
поджигается источникам воспламенения, и полученная смесь сжигается.
Образующаяся в камере сгорания 1 газовая струя с температурой свыше
(2000-2500)0С разгоняется до необходимых скоростей (1600-2000)м/с в сопле Лаваля 2 и выбрасывается на объект обработки или реза в виде
продуктов сгорания 22.
Горелка работает в режиме
детонационного горения, причем продукты
сгорания 22 пульсируют благодаря укороченной диффузорной части 4 сопла
Лаваля 2.

Рис.2.
Система охлаждения горелки для высокофорсированного режима детонационного
горения.
Камера
сгорания 1 и сопло Лаваля 2, особенно зона его критического сечения 5 и
диффузор 4, работают в форсированном и высокотеплонагруженном состоянии,
поэтому процесс интенсификации теплопередачи реализуется за счет вставки 15 и
выполненной в ней канавки 17, которые содержат на внешней поверхности капиллярно – пористое покрытие
16, выполненное из многослойной сетки, размер ячеек в каждом из слоев
которой последовательно возрастает по
направлению к внешней поверхности. Поскольку вставку 15 выполняют из массивного
высокотеплопроводного тела (меди), это значительно повышает теплоаккумулирующую
способность сопла 2, интенсифицирует теплообмен и за счет управления распространением
тепловых волн предотвращает разрушение сопла в напряженных режимах работы.
Выполнение радиуса кривизны канавки 17 в 2,5 – 5 раз большей ее глубины
способствует снятию концентрации термических напряжений и компенсации
термических удлинений в тепловой канавке. Наличие капиллярно – пористого
покрытия 16 обеспечивает создание равномерной и устойчивой пульсирующей пленки
охладителя 18 на вставке 15 с наружной
и торцевой сторон при совместном
действии инерционных сил (давления) и капиллярных сил. За счет выполнения
капиллярно – пористого покрытия 16 анизотропным, т.е. имеющим последовательным
рост размера ячеек по направлению к внешней
поверхности, создается высокий капиллярный напор и активно
удаляются возможные паровые пузыри.
Таким образом, у горелки
увеличивается срок службы за счет интенсификации теплопередачи,
увлечения отводимых тепловых нагрузок, выравнивания температурного поля в
охлаждаемых стенках, повышения теплоаккумулирующей способности сопла и способности
капиллярно – пористого окрытия выравнивать тепловые нагрузки, что особенно
важно в момент возможных аварийных ситуаций. Кроме того, компенсируются
термические удлинения, снимаются концентрации термических напряжений, что
исключает возникновение резкопеременных разрушающих нагрузок. При этом экономится охладитель и электроэнергия
сокращаются эксплуатационные расходы.
Срок службы горелки повышается в 1,5 раза за счет интенсификации
теплопередачи путём создания равномерной устойчивой пульсирующей плёнки на наружной
поверхности сопла, а также путём увеличения отводимых тепловых нагрузок с
помощью высокой теплоаккумулирующей способности вставки с выполненной в ней
канавкой и капиллярно –пористым покрытием, имеющим анизотропную структуру, при
этом выравнивается температурное поле в
теплонапряженных элементах горелки и
исключается возникновение
резкопеременных разрушающих нагрузок. Перечисленные преимущества реализуется
как при номинальной нагрузке, так и при
переменных и аварийных режимах работы
(исключается закупорка охлаждающей полости паровыми пузырями ). Резко сокращается расход охладителя (в 4 раза), что экономит воду.
Литература
1. Polyaev
V., Genbach A., Genbach A.A. An experimental study of thermal stress in porous
material by methods of holography and photoclasticity// Experimental thermal
and fluid science, avenue of the Americas.-New York, volum 5. number 6,
November.-1992.-P.697-702.
2.
Поляев В.М., Генбач А.А. Пористое охлаждение камер сгорания и сверхзвуковых
сопел// Тяжёлое машиностроение, №7.-1991.-С.8-10.
3.
Поляев В.М., Генбач А.А. Пористая ситема в огнеструйных горелках// Известия
вузов. Авиационная техника.-1991.№4-С.39-43.
4. Генбач А.А., Генбач Н.А. Применение
капиллярно-пористых систем в тепловых энергетических установках
электростанций// Вестник АУЭС.- 2011. №3(14), Алматы.-C.4-11.
5.
Поляев В.М., Генбач А.А. Области применения пористой системы// Известия вузов.
Энергетика.-1991.№12.-С.97-101.
6 Поляев В.М., Генбач А.А. Применение пористой
системы в энергетических установках// Промышленная энергетика.- 1992. №1.- с.40-43.
7.
Генбач А.А., Генбач Н.А., Генбач Е.А., Генбач Ан.А. Теплотехнические
характеристики капиллярно-пористых теплообменников ТЭС// Энергетика,
телекоммуникации и высшее образование в современных условиях. Сб.научных трудов
3-ей Международной НТК.-Алматы.-2002.-С.73-76.
8.
Генбач А.А., Генбач Н.А. Исследование капиллярно-пористых систем в тепловых
энергетических установках электростанций// Вестник АУЭС.- 2011. №3(14),
Алматы.-С.57-62.