УДК
674.9 Айтбаев Д. Н, магист. гр. МТДО -13 (2) МОК
КазГАСА, г. Алматы.
Еспаева А.С. к.т.н.
ассоц.проф. МОК КазГаса, г.Алматы
СОВЕРШЕНСТВОВАНИЕ ПРОЦЕССА
ГАЗИФИКАЦИИ ДРЕВЕСНЫХ ОТХОДОВ С ЦЕЛЬЮ ПОЛУЧЕНИЯ МОТОРНОГО ТОПЛИВА
Ключевые слова: древесные отходы,
газификация, катализатор, моторное
топливо, метанол.
Keywords: wood waste, gasification, catalytic
agent, motor fuel, methanol.
Құпия
сөздер: Ағаш қалдықтары, газификация, катализатор,
моторлы отын, метанол.
Сегодня в
Казахстане многие лесопромышленные
предприятия в силу постоянного недостатка оборотных средств, а некоторые еще и
по причине отдаленности месторасположения,
испытывают значительные сложности в снабжении бензином, дизельным топливом и бытовым
газом. Кроме того, цена на вышеперечисленные энергоносители постоянно повышается, и
топливная составляющая всегда увеличивает себестоимость основной продукции
предприятия. При этом предприятия зачастую обладают значительными и постоянно растущими
резервами неиспользуемых древесных отходов, которые по мере их гниения, создают
техногенные зоны.
В связи этим на
сегодняшний день очень актуальна разработка технологии и
комплекса технических средств мини завода для обеспечения
лесопромышленных предприятий
моторным и бытовым топливом, получаемым из древесины путем экологически чистой переработки и
полной утилизации отходов лесозаготовок и деревообрабатывающих производств. Реализация данной
технологии позволит конкретному предприятию избежать столь острой проблемы
снабжения моторным топливом, а также постепенно ликвидировать запасы неиспользуемых, зачастую
портящихся, древесных отходов путем их экологически
чистой переработки и полной термической утилизации. Предлагаемая технология
базируется на предварительной подготовке древесного сырья из отходов путем их
механического измельчения
до рациональных размеров и последующей его 100-процентной газификации в прямоточном
газогенераторе. Для
получения синтез газа
- смеси, состоящей в основном из водорода и монооксидауглерода, необходимо
провести совершенствование производства генераторного газа. Линия для газификации твердых отходов, в
частности отходов деревообрабатывающих производств, с последующим каталитическим
превращением полученного синтез-газа в моторное топливо [1].
Разрабатываемая установка термического катализа (УТК) состоит из модулей
подготовки сырья, получения синтез-газа, получения теплоизоляционных
материалов, получения
метанола, получения моторных топлив, управления УТК. Модуль получения
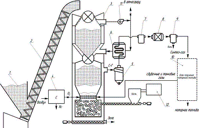
синтез-газа представлен на рисунке 1.

Сырьем для процесса газификации служат
отходы деревообрабатывающей промышленности, низкосортная древесина мелкого и
среднего фракционного гранулометрического состава, отходы согласно EN212
лесодобычи и лесопереработки. Они перерабатываются в древесную щепу и
складируются в специальный бункер 1. Далее полученная технологическая щепа по
транспортеру 2 поступает в газогенератор 3. Газогенератор прямоточного типа
состоит из зоны сушки сырья, зоны пиролиза и газификации. Процесс сушки происходит с
помощью конвективного подвода тепла. Из рекуперативного теплообменника 6
нагретый воздух сквозь ситовые отверстия поступает в зону для подсушки и
проходя сквозь слой щепы, выходит в атмосферу с помощью воздушного компрессора
11.
Далее щепа через
лопастной питатель поступает в зону пиролиза и под действием силы тяжести постепенно
опускается вниз, где происходит высокотемпературный термохимический процесс взаимодействия
органической массы с газифицирующим агентом. В качестве окислителя выступает
воздух, нагнетаемый с помощью дутьевого вентилятора, который
проходит через сепаратор 4 для отделения
его от азота. Очищенный воздух (О2) через фурмы поступает в нижнюю часть
газогенератора и смешивается с пиролизными газами. В результате горения пиролизных газов
и сдувочных и танковых газов, поступающих дополнительно из блока получения
моторного топлива, в среде кислорода образуется двуокись углерода и вода. Далее
происходит восстановление на поверхности раскаленного угля двуокиси углерода СО2до
ее моноокиси СО, а воды Н2О – до водорода Н2.Рис. 1
–Технологическая схема процесса газификации:1 – бункер с сырьем; 2 транспортер
шнековый; 3 – газогенератор; 4 – сепаратор; 5 – циклон; 6 –рекуперативный
теплообменник; 7 – адсорбер; 8 – осушитель; 9 – фильтр тонкойочистки; 10 – блок
получения моторного топлива; 11 – воздушный компрессор; 12 –установка быстрого
пиролиза
Для увеличения концентрации СО в полученном синтез-газе
в зону восстановления добавляется
уголь. Нехватка угля компенсируется установкой углесжигания 12 [2].
Состав получаемого газа зависит от схемы
газогенератора и режима процесса. Но прямой продукт
газификации твердых топлив (в т.ч. щепы) всегда содержит некоторое количество углекислого
газа СО2, воды Н2О, метана СН2 и, кроме того,
иногда и высших углеводородов, а при
использовании воздуха – еще и NO2 [3]. 213
Полученный синтез-газ
имеет высокую температуру (900-1500°С) и содержит большое количество примесей
(золу и смолы), поэтому газогенераторная установка комплектуется специальными
системами охлаждения и очистки газа. Зола из газогенератора попадает в зольник.
Удаление золы осуществляют с помощью шнекового питателя в
нижней части газогенератора. Выходящий из газогенератора газ попадает в циклон
5 для грубой очистки от частичек золы. Затем поступает в рекуперативный
теплообменник 6, где он охлаждается до необходимого уровня за счет поступившего
из атмосферы холодного воздуха. Очищенный и охлажденный газ попадает в адсорбер
7 для поглощения остатков углекислого газа СО2. Вода, содержащаяся в
синтез-газе, удаляется в осушителе 8. Далее после фильтра тонкой очистки 9 от
более мелких частиц пыли синтез-газ поступает в блок получения моторного топлива 10.
Там его параметры доводят до рабочих параметров реактора каталитического
синтеза, после которого получают жидкий метанол. Затем метанол поступает в
реактор термического
катализа, предназначенный для получения
углеводородных фракций моторного топлива. Разработанная технология
обеспечивает экологически чистую утилизацию собственных убыточных древесных
отходов, она позволяет получить высокооктановое моторное топливо. При этом
попутно будет получено значительное количество тепловой энергии, которую можно
использовать для само энергообеспечения
производства. Созданный по предлагаемой технологии мини-завод в процессе его
эксплуатации позволяет решить ряд имеющихся проблем. В частности, это:
- повышение полноты использования
заготовляемой предприятием древесной массы;
- снижение экологически вредной нагрузки
на окружающую среду за счет
безубыточной утилизации;
-
обеспечение, в определенной степени, топливно-энергетической независимости
лесопромышленного предприятия.
При этом с помощью
установки термического катализа планируется получать моторное топливо марки
«Бензин неэтилированный марки Премиум Евро-95 вид 3, «Синтетическое моторное
пиротопливо» с производительностью не менее 20 литров в час по исходному сырью.
Основной целью создания УТК является снижение экологической нагрузки на
природную среду за счет повышение эффективности использования лесных ресурсов и
внедрения энергосберегающих энергоносителей и теплоизоляционных материалов.
Литература
1. Сафин,
Р.Р. Анализ современного состояния лесопромышленного комплекса и
перспективы его развития набазе кафедр лесотехнического профиля КГТУ / Р. Р.
Сафин, Р. Г. Сафин // Вестник Казан. технол.ун-та. 2010
2. Тимербаев,
Н.Ф. Современное состояние процесса пирогенетической переработки
органических веществН.Ф. Тимербаев, Р. Г. Сафин, И. И. Хуснуллин // Вестник
Казан. технол. ун-та. -2011
3. Сафин,
Р.Г. Технологические процессы и оборудование деревообрабатывающих
производств / Р.Г.Сафин. М.: Изд-во МГУЛ, 2003.
4.Справочник
потребителя биотоплива / В. Варес . Тал-линн, ТТУ, 2005
5.Использование
низкотоварной древесины и отходов лесопро-мышленного производства. В. В.
Шкутко. – Хабаровск: ХГТУ, 2003.
6.Веселов,
А. А. Использование древесных отходов
А. А. Веселов. 2004
7. Использование
низкотоварной древесины и отходов лесопро-мышленного производства. В. В.
Шкутко. – Хабаровск: ХГТУ, 2003.