Байнатов Ж.Б. Темирболатова Д.Х. (КазНТУ имени К.И.Сатпаева)
Разработка конструцкции ветроэнергетической
установки с агрегатами горизонтального вращения и методы расчета опорного
ствола на ветровые нагрузки.
УДК 621.548:621.396.946
Аннотация. На
сегодняшний день энергия ветра является одним из самых чистых, самых
перспективных возобновляемых источников энергии. Современная ветроэнергетика
переживает период бурного развития. В мировой практике на современном этапе
существует два подхода к использованию энергии ветра. Ветроэнергетические
станции большой мощности, работают параллельно с энергосистемой, а ветростанции
малой мощности используется автономно для локальных мало энергоемких
потребителей, в большинстве случаев децентрализованных. Перспективы
использования ветроэнергетики определяются наличием соответствующих
ветроэнергетических ресурсов, Казахстана исключительно богат ветровыми
ресурсами. Порядка 50% территории Казахстана имеет среднегодовую скорость ветра
4-5 м/с, а ряд районов имеет скорость ветра 6м/с и более, что предопределяет
очень хорошие перспективы для использования ветроэнергетики.
Ключевые слова: ветроэнергетическая установка, расчет
опорного ствола, ветеровые нагрузки, горизонтальное вращение.
Annotation. Today, wind energy is one of the
cleanest, the most promising renewable energy sources. Modern wind energy is
experiencing a period of rapid development. In world practice, at the present
stage, there are two approaches to the use of wind energy. Wind power station
high power, working in parallel with the grid, and low-power wind farm is used
for autonomous small local energy-intensive users, in most cases decentralized.
Prospects for the use of wind power are determined by the availability of
relevant wind energy resources, Kazakhstan is exceptionally rich in wind
resources. About 50% of the territory of Kazakhstan has the annual average wind
speed of 4-5 m / s, and has a number of areas the wind speed of 6m / s or more,
which determines the very good prospects for the use of wind energy.
Нефть, газ, уголь, энергия атома, без сомнения, самые эффективные энергоресурсы. Проблема в том, что их запасы ограничены, но и экологически они небезопасны.
Энергию ветра используют в самых разных целях: для перекачки воды, отопления теплиц, зарядки батарей яхт, энергопитания дистанционной трансляционной телесвязи и в конечном счете для подачи энергии непосредственно в высоковольтную энергосеть.
Архиважность этой проблемы связана с тем, что ежегодно население планеты возрастает на 2 процента, а выработка энергии растет 5 процентов, это означает пора искать другие пути поиска электроэнергии. Для выработки мы пользуемся природными запасами нефти, угля и газа. Но эти запасы не вечны и через 50-60 лет могут закончится.
Обострившиеся проблемы энергетики требуют разработки методов крупномасштабного производства энергии с помощью альтернативных источников, важнейшим из которых является ветровая энергия. Ветровую энергию использовали давно - когда-то Дон-Кихот сражался с ветряными мельницами: его объявили сумасшедшим, да и парусники бороздили моря со времен Гомера.
Большое количество ветровой энергии вырабатывается в Штатах. Ресурсы ветровой энергетики в этой стране таковы, что способны обеспечить 25 процентов потребителей электроэнергии. Россия также располагает огромными ресурсами в том числе виде энергии- около 6,2 триллионов кВт-ч, это почти десять раз больше, чем ежегодно производит энергии РАО ЕЭС. Российские ветровые установки сосредоточены в основном вдоль побережья Северного Ледовитого океана, а также в районах, прилегающих к Черному, Каспийскому, Охотскому и Балтийскому морям. Дания за счет ветровых установок производится 20% необходимого в стране электричества. Германия заняла прочные позиции в ветроэнергетике благодаря дешевизне. В Европе себестоимость 1кВт ветряной электроэнергетики - 9 центов, всего в два раза дороже выработанной ТЭЦ (для сравнения: себестоимость солнечной энергии - 40 центов). По числу ветроэнергетических установок - более 20 000 - Германия опережает все страны мира. Никого уже не удивляют многочисленные гигантские сооружения (высота самого большого ветряка 138м) с огромными пропеллерами, стоящие по обе стороны автобанов. Стальные лопасти настолько велики, что из невозможно перевезти целиком. Ветродвигатель, соединенный с генератором электрического тока, вращается со скоростью 20-25 оборотов в минуту (см.”Наука и жизнь” №3, 2004 г.). Общая мощность ветроэнергетических установок превысила 25 МВт. Главная германская компания по производству ветроустановок ”Enecon” выпускает их около десятка в неделю, занимая четвертое место в мире. Однако свой ресурс ветряная установка вырабатывает за двадцать лет. Сегодня Германия занимает третье место в мире по расходам на развитие возобновляемой энергетики, уступая лишь Китаю и США.
Пока основу энергетики Германия все же составляют традиционные энергоресурсы - газ, нефть, уголь. Правда, в самой Германии ни газа, ни нефти нет. Уголь покупает в Польше и Китае, поскольку свои угольные шахты закрыла за нерентабельность уже 20 лет назад. В прошлом году около 10% энергии в ФРГ производилось из возобновляемых источников. К 2020 году планировалось достичь 30%, за счет этого к 2024 году - закрыть все атомные станции, а в 2040 году Германия собиралась отказаться от газа из трубопровода ”Северный поток” . Однако жизнь внесла свои коррективы. Испания с населением в 46 млн.человек уже сейчас генерирует более 2% электроэнергии за счет ветра.
Казахстан занимает 9-е место в мире по площади территории и имеет население более 17 млн.человек, т.е. плотность заселенности низкая; города и населенные пункты расположены на значительных расстояниях. Протянуть и эксплуатировать ЛЭП не всегда экономично, значит местные ветроустановки для выработки электроэнергии выгодны.
Если установить ветростанции на ветреных местах, то суммарно они будут вырабатывать порядка 920 миллиардов киловатт-часов электроэнергии в год, что в 10 раз больше, чем ежегодно потребляет весь Казахстан.
В Казахстане существует более 10-ти географических мест, где можно разместить ветровые установки, т.к. в этих регионах средняя скорость ветра составляет от 5 до 8 м/с.
Согласно строительным нормам и
правилам максимальное нормативное значение ветрового давление для территории
Казахстана составляет q
= 0.85 кПа, что при плотности воздуха
= 1,22 кг/м3 соответствует скорости ветра
=
=37,3 м/с (134 км/ч). Для сравнения в средних широт Евразии сильные ветровые потоки движутся с
запада на восток со скоростью порядка 20 км/ч летом и 50 км/ч зимой. Это
говорит о том, что в Казахстане эксплуатировать ВЭУ экономически выгодно. В
данное время строительство ветровой электростанции в Казахстане осуществляется
в районе Джунгарских ворот Алматинской области в Шелекском коридоре
Енбекши-Казахского района.
Строительство крупной ВЭУ мощностью до 300 МВт начато в районе
города Ерейментау Акмолинской области. Такое же
строительство ведется на перевале Кордайе, Жанатасе, в селе Шокпар Чуйского
района. Джамбульской области. Такие ВЭУ могут быть построены в
Южно-Казахстанской (Жүзімдік), Мангистауской, (Тупкраганском,
Каракиякском районах), Карагандинской, Атырауской областях.
В известных внедренных конструкциях имеются ряд недостатков по
надежности и энергоэффективности, кроме того при вращении лопастей турбины и
ветроагрегатов создаются шум и вибрации из-за несимметричного расположения
рабочих органов в конструкции.
Среди недостатков башенных ВЭУ основными являются их большая масса, значительная высота (50-60 м), делающие их уязвимыми возможным землетрясениям и частым ураганным ветрам, наличие ненужных в условиях однонаправленных ветров систем поиска и разворота на ветер, ломкость пропеллеров при высоких скоростях ветра.
Разработанная установка состоит из двух энерговырабатывающих блоков. Лопасти верхнего блока вращаются горизонтально как лопасти вертолета, второй блок размещен в середине башни и его крылчатки тоже вращаются горизонтально относительно ствола вокруг башни (рис.1). Горизонтальные лопасти верхнего блока имеют небольшое дугообразное очертание в плане, а их ветровая поверхность имеет вогнутую форму для эффективного улавливания напора ветра (рис.1).


Рисунок 1. Общий вид установки с фрагментами
Вокруг втулки вращения симметрично размещены пять лопастей, а их свободные концы объединены в кольцо арматурой для соблюдения геометрической неизменяемости и повышения эксплуатационной надежности (рис.1, а)
Высота опорной башни ветроустановки должна быть не менее 50 м, диаметр не менее 5 м, а диаметр диска с лопастями не менее 40-50 м. Диаметр второго блока-ротора должен быть не менее 30 метров.
При слабом потоке воздуха, регулируя положениями лопастей по вертикали можно увеличивать площадь приема воздушного потока. Это достигается при помощи тяговых подвесок лопастей, т.е. одни поднимаются вверх, а другие остаются строго в горизонтальном положении. В разработанной установке при взаимодействии холодных (которые идут из подвальных этажей) и теплых (нагретых солнцем) масс воздуха возникает сильная струя ветра в узкой полосе ствола движущаяся со скоростью 10-15 м/с.
В том случае, если скорость ветра достигнет большой величины (выше критической), для безопасной эксплуатации ветроустановки, длины всех лопастей автоматически сокращаются до половины, т.е. часть длины входит во внутрь опорной части пропеллеров.
Второй нижний блок как роторный механизм состоит из вертикально расположенных крылчатек концы которых закреплены жестко к каркасу несущего барабана (кольца). Каркас барабана шарнирно соединен к стволу башни и допускает вращения при действии ветрового потока через крылчатки. Для повышения скорости и вращения часть барабана закрыт подвижным кожухом. Ветровыработка с крылчатами устанавливают на ветер обычно из помощи хвоста, связанного с кожухом барабана.

Рисунок 2. Динамическая расчетная схема
При полной загрузке ветровая электростанция производит энергию, достаточную для удовлетворения нужд примерно одного населенного пункта.
Система с вертикальной осью
вращения была выбрана из соображений меньшей стоимости и долговечности. Она
действует независимо от направления ветра, в то время как машины с
горизонтальной осью вращения требуют установки дорогостоящих датчиков и
контрольной аппаратуры, обеспечивающих ее приспособление к скорости и
направлению ветра.
Половина второго блока закрыть кожухом для того чтобы ветровой поток
эффективно вращал бараван через крылчатки. Барабан закреплен к внешней
поверхности башни.
Кожух который закрывает половину барабана имеет пластинчатую стрелки для
поиска господствующего направления ветра.
Для исключения резонансного явления профеллеры верхнего и нижнего вращаются
в разные стороны.
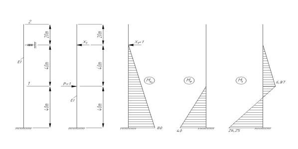
Выполним расчет и определим частоты собственных колебаний учитывая лишь поперечные деформации. Как обычно ветроэлектростанции защемлены в основании пяты, принимая вес машинных зданий А и В равным Р=700 т, момент инерций башни J=3,5 м4, Е=2*107 т/м2, жесткость оттяжек r11=50 т/м, вес башни р=20 т/пог.м. Расчетная схема представляется как консольная схема с упругими опорами расположенные на уровне закрепления оттяжек со стволом.
Подсчитываем массы:
m1=(700+20
50)=173,5 т сек2/м
m2=(700+20
30)=132,5 т сек2/м

Рисунок 3. Построение эпюры моментов
Характеристическое уравнение частот ω1,2 колебаний упругой системы с двумя степенями свободы имеет вид:
ω4(δ11δ22-
) m1 m2 –ω2(δ11
m1+ δ22
m2)+1=0
Подсчитываем единичные перемещения для точек 1 и 2 системы, показанной на рис.3. Жесткости:
EJ=7
107 тм2 r11=500 т/м.
Согласно рис.3, каноническое уравнение имеет вид:
X1+
=
, здесь
=(·80·80··80)=
0,00244
(·40·40·66,7)=
-0,00076
Каноническое уравнение будет:
0,00244 X1-0,00076=-0,002 X1
Отсюда X1=0,172

Рисунок 4
По рис.4 каноническое уравнение имеет вид
X2+
=
![]()
(·80·80·73·4)=
=0,00334
Тогда каноническое уравнение будет
0,00244 X2-0,00334=-0,002 X2
Отсюда X2=0,755
Единичные перемещения будут равны:
=
(6,87·40·
6,87+
26,25·31,7
26,25 +
6,87 ·8,3
6,87)=0,000115
==0,00109
Уравнение имеет вид:
ω4(0,000115·0,00109-0,00015562)173,5·132,5-ω2(0,000115·173,5+0,00109·132,5)+1=0
или
ω4-70,8 ω2+431=0
откуда
=35,4-
=35,4-28,6=6,81 1/сек2
=35,4+
=35,4+28,6=64 1/сек2
Периоды колебаний:
=
=2,42 сек (основной тон)
=
=0,785 сек
Подставив в любое из уравнений поочередно найденные значения ω, получим из него соответствующую величину отношения у1/у2, т.е.можем найти форму свободных колебаний.
=
==0.106
Список использованной
литературы
1. Кузьмин Н.А.,
Рекач В.Г., Розенблат Г.И. Сборник задач по курсу строительной механики,
Госстройиздат Москва 1962.- 332с.
2. Леонтьев Н.Н., Соболев Д.Н., Амосов А.А. Основы строительной механики стержневых
систем, Издательство Ассоциации строительных вузов Москва 1996.- 449,450с.
3. Байнатов Ж.Б, Байнатов О.Ж. Патент РК №77921