Тайсариева К.Н., Илипбаева Л.Б.
Казахский
национальный технический университет им. К. Сатпаева, РК
Исследование
спектральных характеристик многоуровневых однофазных инверторов
В настоящее время актуальной
является проблема создания систем, позволяющих использовать солнечную энергию и
преобразующих ее в электроэнергию. Системы преобразования энергии, полученной
от солнечных панелей, в электроэнергию переменного напряжения промышленной
частоты должны
обладать хорошими энергетическими показателями, такими как, удельная мощность,
КПД, коэффициент мощности и качество вырабатываемой электроэнергии, то есть
синусоидальность формы кривой напряжения, а также стабильность частоты и
напряжения.
Для улучшения выше приведенных показателей модифицирована
схема многоступенчатого инвертора[1]. Построены и исследованы имитационные модели
мультиуровневых инверторов, для восьми, двенадцати и двадцати шести
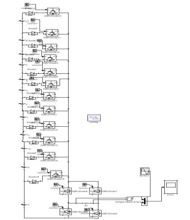
ступенчатого инвертора (Рисунок 1).
Полученные модели работают по разработанному
алгоритму мультиуровнего инвертора. Схема инвертора состоит
из моста, образованного четырьмя транзисторами, и n транзисторных ключей, включающих в себя n транзисторов Tn и n диодов Dn
и подключенных к n источникам питания Еn
для формирования
на выходе напряжение прямоугольной формы, как в положительном, так и в
отрицательном полупериоде.

Рисунок 1– Имитационная модель двенадцати уровневого
инвертора
Схема инвертора собрана на IGBT
транзисторах. Для получения наиболее синусоидальной кривой напряжения были
проведены расчеты угла коммутации для каждого источника. Нужно отметить, расчет
угла коммутации для каждой ступени проводится по индивидуальному алгоритму и, соответственно, меняется при увелечении числа уровней. Результаты
имитационной модели однофазного мультиуровнего инвертора промышленной частоты
показали, что наиболее синусоидальная кривая напряжения получается с ростом
уровней. Для наиболее подробного анализа получены спектральные характеристики в
среде моделирования Matlab для восьми, двенадцати и двадцати шести
уровнего инвертора, который отражает весь гармонический состав кривой
напряжения. На рисунках 2, 3, 4 представлены соответствующие спектральные
характеристики.

Рисунок 2 – Спектральные составляющие восьмиуровневого
инвертора

Рисунок 3 – Спектральные составляющие двенадцати уровневого инвертора

Рисунок 4 – Спектральные составляющие двадцати шести уровневого
инвертора
Одним из показателей синусоидального колебания
является периодичность. Из спектральных составляющих наиболее периодичными
являются двенадцати и двадцатишести уровневый инвертор который имеет
коэффициент гармонического искажения 2,98 и 1,22% соответственно, при восьми
ступенчатом преобразований наблюдается непериодичность спектральных
составляющих и коэффициент гармонического искажения составляет более высокий
показатель 4,64%.
В заключении нужно отметить что наиболее
синусоидальную кривую можно получить при двадцати шести уровневом инверторе,
который имеет коэффициент гармонического искажения 1,22%. При этом схемная
реализация такого инвертора требует более высоких материальных затрат, так как
с ростом количества уровней будет расти количество ключей коммутации.
1. Исембергенов
Н.Т., Илипбаева Л.Б. Компьютерное моделирование системы «солнечные
элементы–инвертор–нагрузка»/ Сборник научных трудов V-международной научно-технической
конференции «Энергетика, телекоммуникации и
высшее образование в современных условиях» – Алматы. АИЭС, 2006. 156-158с.
2. Исембергенов
Н.Т., Тайсариева К.Н. Моделирование
трехфазного инвертора в среде MATLAB. Труды Международной
научно-практической конференции «Информационные и телекоммуникационные
технологии: образование, наука, практика», посвященная 50-летию Института
информационных и телекоммуникационных технологий. Алматы. 2012 год. С. 325-328.
3. Деян Шрайбер.
Преобразователи высокой мощности для возобновляемых источников энергии. Силовая Электроника.
№5’2010. С.90-
94.