Аспірант Марченко Т.К.
Кіровоградський національний технічний університет,
Україна
Дослідження
впливу параметрів робочого органу розпушувача на ущільнення розробленого ґрунту
Одним з головних факторів
ушкодження агрегатів ґрунту є його ущільнення під час дії на масив робочих
органів. Величина ущільненого ґрунтового ядра залежить від властивостей ґрунту,
конструктивних та режимних параметрів робочих органів грунтообробних знарядь.
З боку робочого органу за схемою рис. 1 на ґрунт діють робочі поверхні
декількох деформаторів – долота, стійки та бокових ножів, причому площа контакту
ножів із грунтом складає 40-45 % від усієї площі робочих поверхонь деформаторів.

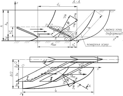
Рисунок
1 – Схема
робочого органу розпушувача ґрунту та зони дії деформаторів
У результаті досліджень [1] установлено, що на ступінь деформування грунту
ножем при однакових грунтових умовах найбільше впливають кут кришення ε,
кут розхилу ножів γ та робоча швидкість vм.
Коефіцієнт ущільнення ґрунту
(відносне ущільнення ґрунту)
,
де Vc – об’єм сегменту грунту, що
відділяється від масиву ножем за черговий
цикл навантаження, м3;
DV – величина, на яку зменшується об’єм сегменту грунту в
результаті стискування, м3.
,
де dc - nовщина стружки ґрунту, м (рис. 2);
Sз – площа
поверхні зсуву сегмента ґрунту, м2.

Рисунок 2 – Форма та
розміри сегменту ґрунту, що відділяється ножем
I
– положення ножа перед впровадженням у
масив ґрунту; II - положення ножа у момент зсуву
масиву ґрунту
Товщина стружки ґрунту у напрямку xʹ відповідає відстані між двома черговими поверхнями
зсуву, паралельними між собою:
,
де
- максимальне переміщення ножа до
моменту зсуву грунту, м;
– хід ножа, для транспортування
стружки ґрунту, м;
Площу
поверхні зсуву знаходимо наближено, як площу поверхні сегменту еліпсоїда
обертання, а саме його 1/8 частини
,
де la, lb, lc – півосі еліпсоїда;
р = 1,6075.
,
,
,
де bн та hн – ширина захвату та робоча глибина ножа,
м.
Об’єм пластичного деформування знайдемо як добуток площі попереднього перетину порожнини, яка має в
загальному випадку форму трапеції ABCD (рис. 2) на
довжину ножа
,
де а – ширина леза ножа, м.
Для зменшення ущільнення ґрунту необхідно мінімізувати зусилля (контактні
напруги стиснення) на ножі, достатні для відділення частини ґрунту від масиву.
Шляхами рішення цієї задачі є: 1) зменшення площі поверхні зсуву ґрунту при
постійній величині площі поверхні ножа шляхом зменшення розмірів la, lb та lc; 2) зниження
динамічності навантаження на ґрунт завдяки вибору оптимальної робочої швидкості
машини. Враховуючи, що розміри lb та lc пов’язані з продуктивністю, мінімізації підлягає la.
Література:
1. Марченко Т.К. Дослідження залежності форми зони
напруження у грунті від конструктивних
та режимних параметрів плоскоріжучого робочого органу // Механізація та електрифікація
сільського господарства. – Глеваха, 2013. -
Вип. 98. – С. 453 – 459.
2. Панов И.М. Физические основы механики почв: монография / И.М. Панов, В.И. Ветохин.- К.: Фенікс, 2008. - 266 с.