National Research University of Irkutsk, Russia
Educational project of the theater-studio
Theater -
spectacular art form, which is a synthesis of different arts - literature,
music, dance, singing, fine arts and others, and has its own characteristics.
Theatrical action reflects reality, conflicts, characters, and gives an
estimate of the outside world.
The architectural appearance of the
theater plays an important role in the perception of the theatrical
performance. When designing the building, the architect takes as basic aspects
such as: the acoustics of the auditorium, ergonomic design, ease of
placement of the main elements of the building, interrelation of premises etc.
The exterior also is important. The building should have a unique look and
create a sense of solemnity. The task of the architect lies in the harmonious
combination of aesthetic and practical qualities of the building.
Learning process on specialty Architecture
was given the task to design the building of the theater-studio in the city of
Irkutsk.
Considering the theater as an architectural structure, it should be noted that the
main elements of the theater - the stage and the auditorium. Depending on the
types of views taking place in the theater can appear elements such as curtain,
choirs, orchestra pit and backstage ramp.
The construction site was chosen on the Lermontov Street near the bus stop
"School 19" where the street has a little bend. The terrain has a
slope, so it was decided to design the shape of the building in order to
emphasize the relief and the urban environment. The main idea of the building
was a compound of composition elements such as arc exaggerated follows the
curve of the street Lermontov and the slope of the relief, expressed in the form of a stepped
arrangement of the main elements of the building. Most clearly the main idea of
a building can be traced on the plan on the
first floor (see pic. 1).

Picture 1. Plan on the first floor
The theater is
designed so that people can get into the auditorium for two main streams of
traffic - through the main entrance hall of the main stairs and stepped through
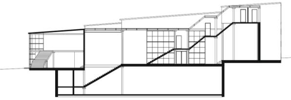
the arc of the second floor, which smoothly rises bending around the auditorium. Step arch formed by a series of
scenic dressing rooms and household premises located on the first floor. In the sections can be clearly seen an amphitheatrical
arrangement of the main elements (see pic. 2 and 3).

Picture 2. Section of the ladder

Picture 3. Section along the
auditorium
In addition, the theater has two auditoria - the main
(ground floor) and small, in the basement. Also in the basement is a warehouse
of scenery. Glass facade of the theater fills the space with light and
integrates elements composition (see pic. 4).

Picture 4. Facade
Bibliography
1.
Barkhin G.B. The architecture of the
theater. Izdatelstvo Akademii Arhitekturyi SSSR Publ., 1947. 248 p.
2.
National
bulding museum. Available at: http://www.nbm.org/ (accessed 19 November 2015).
3.
The International Federation for Theatre Research. Available at: http://www.firt-iftr.org/working-groups/stage-forms/theatre-architecture (accessed 19 November 2015).