Джанұзақова Р.Д., Тілеумұрат С.
М.Х.Дулати атындағы Тараз Мемлекеттік Университеті
Оптоталшықты желілердегі
ұштықтаулар
Желілік магистраль деңгейінде жіберілетін ақпараттың
өскен көлемін қабылдауды тек оптикалық талшықты
қолдану арқылы қол жеткізуге болады. Оптикалық
талшық, қазіргі уақытта ақпараттың үлкен
қарқынын алыс қашықтықтарға жіберуге
арналған жетілдірілген орта болып есептелінеді.
Коннектор – коннектор жалғануы.
Операторлар мен қолданушыларға үйреншікті, жиі
қолданылатын жалғау түрі - коннектор-коннектор. Басқа
электрлік жалғанулармен салыстырғанда коннектор-коннектор жалғануы розетка
мен вилка түсінігінен өзгеше. Негізінде, екі бір типті коннекторлар арнайы ұяшық
арқылы жалғанады.
Жалғау көпқолданысты және қарапайым.
Аппаратура кірістері мен шығыстарын арнайы аспаптарсыз ауыстыруға
мүмкіндік береді. Электрлік вилка
мен штекерге ұқсас.
Әрекет принципі түсінуге оңай болғанымен,
дайындау технологиясы күрделі. Жалғау
талабы - екі оптоталшықты, осінен микрон ауытқудан аспайтын
және оптоталшыққа сызат түсірмейтіндей оператор
қимылын шектей отырып, бір-біріне тығыз жалғау. Коннектор
ұштықтары керамикадан жасалады және дайындау дәлділігі
жоғары. Керамикалық
ұштықтың тура ортасынан оптоталшық өтеді.
Оптикалық коннекторлардың бірнеше
стандарттары бар: ST, SC, LC, FC, FDDI және т.б. жұмыс істеу
принципі бірдей, тек ұяға бекіту және орнықтыру
амалдары ғана бөлек.
ST-коннектор (ағылш. Straight Tip) . Локалды оптикалық
тораптарда көп тараған түрі
(1 сурет). Керамикалық ұштық, шеті
дөңгелектенген диаметрі

1 сурет – ST-коннекторы 2 сурет –ST розеткасы
SC-коннектор (ағылш. Subscriber Connector). SC типті коннектордың корпусы
пластмассадан жасалған, бір сызықтық қозғалыспен
бірқалыпты ағытуды қамтамасыз етеді (3 сурет). Мұндай разьем оптикалық
кросстардағы өте тығыз ұяларда қолдануға
ыңғайлы. Ұштықтар бұрылмайтындықтан,
қосып-өшіру кезінде
SC разъемы параметрлердің
түзетулерінің жақсаруын қаматамасыз етеді.

3 сурет – SC коннекторы
Корпус қимасы формасы
тікбұрышты. Коннекторды қосып-ағыту бағыттауышты түрту арқылы жүргізіліп, ілгекпен
орнықтылады Керамикалық
ұштық, шеті дөңгелектенген диаметрі

4 сурет– SC розеткасы
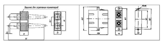
SC типті разьемы дуплекстік
нұсқада жиналуы мүмкін (5-6 сурет):

5сурет– SC дуплексті коннектор 6 сурет– SC дуплексті розетка
Қолданылған
әдебиеттер
1. Под ред. Скляров
О.К. Современные волоконно-оптические системы передачи. М: Солон-Р, 2001.
2. Под ред. Виноградов В.В., Котов В.К.,
Нуприк В.Н.Волоконно - оптические линии связи. М:Радио и связь, 2002.
3. Гитин В.Я., Качановский Л.Н.
Волоконно-оптические системы передачи. М: Радиосвязь, 2003.
4. Под ред. Дмитреев А.Л.. Оптические системы
передачи информации. БХВ Петербург, 2007.
5. Бутусова И.И. и др.
Волоконно-оптические системы передачи. Радио и связь, 2002.
6. Бейли Д., Э.Райт. Волоконная оптика.
М.: Кудриц - образ, 2006.
7. Гауэр Дж. Оптические системы связи.
М.: Радио и связь, 2009.
8. Гитин В.Я., Кочановский В.Н.
Волоконно-оптические системы передачи. М.: Радио и связь, 2003.
9. Гроднев И.И. Волоконно-оптические
линии связи. М.: Радио и связь, 2000.