Сельское хозяйство/2.Механизация сельского хозяйства
Михайлов
С.С.
Саратовский
государственный аграрный университет имени Н.И. Вавилова, Россия
Совершенствование
бульдозерного отвала на базе трактора Т-170 предназначенного для восстановления
насыпных сооружений
Наиболее актуальной машиной для
планировки откосов земляных сооружений является автогрейдер, который имеет
возможность произвести вынос отвала в сторону изменить его положение в трех
плоскостях, однако, при небольших объемах земляных работ его применение
экономически нецелесообразно вследствие высокой стоимости, низкой маневренности
и специфичности выполняемых работ. Но все же стоит обратить внимание на рабочий
орган автогрейдера в перспективе его установки в качестве дополнительного
рабочего оборудования на бульдозер.
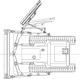
Совершенствованная
конструкция дополнительного бульдозерного отвала для планирования откосов
земляных сооружений будет навешиваться сбоку бульдозера (рис. 1).

Рисунок 1-Общий вид
Дополнительный отвал представляет собой
криволинейный лобовой лист в нижней части которого установлен режущий плоский
прямой нож и дополнительный нож для подрезания (рис. 2). Оба ножа крепятся на
лобовой лист с помощью болтового соединения. Для обеспечения жесткости
дополнительного отвала с тыльной стороны установлены ребра жесткости
выполненные из листового металла. Так же с тыльной стороны установлена шаровая
опора для крепления отвала к системе навески.

Рисунок 2-Дополнительный отвал
Система
навески отвала крепится на толкающем брусе с помощью пластины на которой
установлены три пары проушин. В верхней части проушины установлены для
крепления гидроцилиндров обеспечивающих подъем и опускание дополнительного
отвала. В нижней части установлены две пары проушин для крепления двух тяг
обеспечивающих параллелограмное соединение с поперечной тягой. На продольной
балке посредством шарнирного соединения установлена поперечная балка
обеспечивающая крепления дополнительного отвала. Отвал крепится к поперечной
балке посредством двух тяг шарнирно закрепленных на тыльной стороне отвала и на
поперечной балке. Последняя тяга крепления отвала к поперечной балке имеет
шарнирное крепление в центральной части и на конце которой шарнирно закреплен
шток гидроцилиндра обеспечивающий поворот отвала в вертикальной плоскости. Сам
гидроцилиндр закреплен посредством шарнирного соединения на поперечной балке в
верхней части.
Для управления дополнительным боковым отвалом гидравлическая схема
базового бульдозера была видоизменена. Дополнительно
установлены четыре гидроцилиндра.
Применение модернизированного бульдозера на
базе трактора Т-170 позволит сократить не только снижение затрат на
ремонтно-восстановительных работ, но и их срок проведения.
Список
литературы.
1. Патент на полезную модель РФ №96579 МПК Е01Н5/06 Боковое рабочее
оборудование автогрейдера. Скоблов А.В., Журавлев В.В., Ильюшин В.Ф., Потапов
А.П., Слатов А.Н., Храмков И.М. Дата опубликования 10.08.2010. бюл. №2
2. Гидравлика, гидромашины и
гидроприводы в примерах решения
задач: учебное пособие для студ. вузов по спец. напр. подг. "Эксплуатация
наземного транспорта и транспортного оборудования"; доп. УМО / Т. В.
Артемьева и др. - 2-е изд., стер. - М. : Академия, 2013. - 208 с.
3. Научный журнал КубГАУ, №89 (05), 2013г.
4. Долгих А.И., Дудко А.А. Строительство земляной
насыпной плотины: Учебн.пособие / Саратов. ЦНТИ,1993г. -41с