Строительство
и архитектура/5. Теплогазоснабжение и вентиляция
Кубис
В.А., Кубис А.В.
Пензенский государственный университет архитектуры и
строительства, Россия
Многофункциональная
энергоэффективная теплица для личных подсобных хозяйств
В целях повышения эффективности личных подсобных хозяйств
необходимо шире использовать выращивание овощей в закрытом грунте. Большинство
современных теплиц, представленных на рынке имеют простые конструкции и не
предназначены для решения ряда операций при выращивания растений. В
частности это касается круглогодичного выращивания овощей, хранения урожая,
выращивания саженцев и рассады плодово-ягодных и декоративных культур. Авторами
предлагается проект многофункциональной теплицы для круглогодичного
использования.
Теплица представляет собой 2 одинаковые по площади теплицы,
выполненные из сотового поликарбоната, соединенные между собой
хозяйственно-тепличным блоком, имеющим капитальные стены.
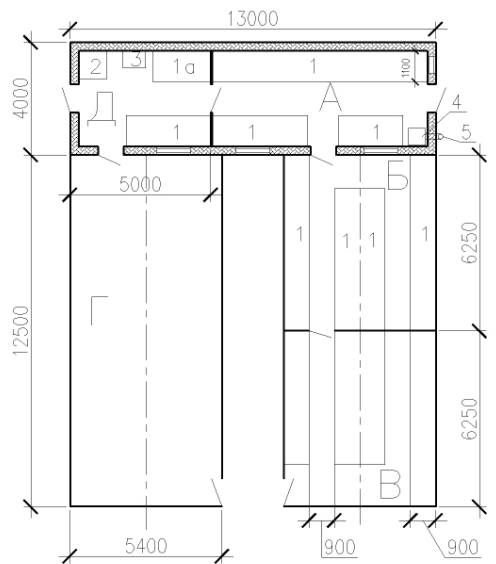
В целом теплица состоит из 4 блоков для выращивания растений и 1 технического помещения (рис. 1)
Расположение теплицы представленное на
рисунке 1 наиболее оптимально, так как капитальное сооружение закрывает
основные теплицы с северной стороны, а сами теплицы расположены в наиболее
освещенной части с южной стороны.
Данное расположение приводит к минимальному затенению прилегающих к
теплице территорий. Промежуток в 2,2 м между теплицами исключает взаимное затенение и в зимнее
время является местом для чистки снега с крыш теплицы.. Теплица с помещениями
Б, В получает максимальное количество солнечного света и теплоты, что крайне необходимо в указанный
ниже период эксплуатации.
С Ю
![]()

Рис. 1. Схема многофункциональной теплицы личного
подсобного хозяйства.
Общая площадь помещений составляет 183 м2, где: площадь для выращивания растений –163 м2, площадь отапливаемых помещений – 62 м2, площадь технического помещения – 20 м2 (рис.2).
Блок А и хозяйственный блок Д выполнены в одном помещении, имеют капитальные стены и
разделены прозрачной перегородкой из сотового поликарбоната.
Предназначение блока Д: работы по пересадке и пикировке растений зимняя
прививка саженцев; хранение инструмента и инвентаря; производство различных
работ.
Блоки А и Д имеют
капитальный ленточный фундамент, стены выполнены из пенобетонных блоков, при
возможности их можно утеплить и обшить гидроизоляционным материалом. Оба блока
имеют общую систему отопления.
При наличии у владельца дополнительных финансовых средств можно
смонтировать под блоками А и Д техническое подполье (рис. 3. б)). Размер
подполья зависит от предназначения и органичен размерами самого надземного
строения и состоятельностью владельца. Техническое подполье – это хранилище
посадочного материала, заготовок и плодов. Лаз в техническое подполье
целесообразно сделать в помещении Д.

Рис. 2. Схема расположения
стеллажей и оборудования:
1 –стеллажи, 2– верстак, 3 –
шкаф для проращивании рассады, 4 – газовый котел, 5 – дымовая труба;
Техническое подполье должно иметь приточно- вытяжную вентиляцию.
Оптимальная температура хранения саженцев и многих плодов +1-3 0С. Для
охлаждения данного подполья необходимо в ранне-зимний период подавать в него
наружный холодный воздух канальным вентилятором.
При наличии или отсутствии технического подполья, полы в
помещениях А и Д необходимо выполнить из монолитного бетона. Лучшее покрытие
для полов – коммерческий линолеум. Практика показывает, что даже недорогой линолеум служит порядка 10
лет.

Рис. 3. Вид
сбоку и фасад теплицы
Крыша блоков А и Д выполнена из сотового поликарбоната в 2 слоя.
Покрытие технического блока сотовым поликарбонатом необходимо, так как многие
из выполняемых работ требуют естественного освещения.
Количество окон в техническом помещении зависит от желания
владельца. Установка простой деревянной оконной конструкции в стене смежной с
помещением Г позволяет улучшать воздухообмен между этими помещениями. В
солнечные, но морозные зимние дни температура воздуха в теплице Г может
подняться до высоких температур, в это время можно пускать теплый воздух в
техническое помещение.
Помещение Д должно иметь 3 двери, в том числе 1 наружную. Первая
дверь соединяет помещения А и Д, вторая
Г и Д соответственно. Дверь между помещениями Г и Д, а так же наружная дверь
могут на зимний период наглухо закрываться.
Предназначение помещения А: выращивание зимних овощей и зелени; выращивание
ранней рассады овощей и цветочных культур; передержка распикированной рассады в
жаркие весенние дни; передержка вновь высаженных саженцев плодово-ягодных и
декоративных многолетних культур; передержка привитых плодово-ягодных культур и
пр.
Помещения А, Б, Д отапливаются газовым котлом.
Наиболее технически целесообразным является установка энергонезависимого
котла и монтаж на системе отопления циркуляционного насоса. Так как помещения
теплицы имеют очень малую тепловую инерцию, в случае использования
энергозависимого котла и отключения электроэнергии, может произойти быстрое
остывание помещений и размораживание системы отопления.
Установка отопительного
котла в указанном месте зимней теплицы наиболее целесообразно, так как
магистрали системы отопления имеют наименьшую длину.
Помещение
А имеет 3 двери в том числе 1 наружную. Первая дверь
соединяет помещения А и Д, вторая А и Б
соответственно.
Помещение Б предназначено для
ранневесеннего использования (конец февраля-март) и является выделенной частью
одной из двух поликарбонатных каркасных теплиц. Отличие помещения Б от и от всей теплицы Г в наличии 2-го
дополнительного слоя поликарбоната для повышенной теплоизоляции.
В вышеуказанный период начала
эксплуатации помещения теплицы Б
долгота светового дня вполне достаточна для выращивания большинства видов
ранних овощей и зелени.
В помещении Б предусмотрена стеллажная
система выращивания растений. Стеллажи данного помещения могут заполняться как выносимыми
из помещения А рассадой и контейнерными растениями, так и культурами непосредственно высаживаемыми в грунт
стеллажей.
Система отопления помещений выполнена в виде стальных коллекторов, расположенных в
подстелажном пространстве. Для наилучшего прогрева стеллажей и зоны растений
устраивается дополнительное укрытие. Дополнительное укрытие позволяет
поддерживать температуру в зоне стеллажей на довольно высоком уровне (20-30 0С)
оптимальной для роста растений. При этом температура в самом помещении Б может
колебаться на уровне 5-10 0С, а в ночное время, в периоды сильных
морозов может опускаться даже до отрицательных отметок. Использование дополнительных укрытий в
теплице в периоды сильных морозов, позволяет снижать энергозатраты, за счет
снижения температуры в помещении теплицы при сохранении интенсивного роста
растений, в месте их расположения.
В периоды, когда в ночные часы температура
опускается ниже -10 0С, (
что случается в апреле раз в 5-7 лет [1])
и в пасмурные холодные дни, дополнительную теплоту получают путем открытия двери между помещениями Б и В и включения
осевого вентилятора для перемешивания воздуха в этих помещениях.
Помещение Г – летняя теплица. Теплица
предназначена для выращивания овощей непосредственно в грунте теплицы.
Используется как классическая теплица с середины апреля. Благодаря большой
площади, в зимний период может использоваться для хранения почвогрунтов, опилок
и стружки для укрытий и мульчирования, а так же как помещение для различных
технических работ, требующих больших площадей.
Для удобного перемещения по теплицам в том
числе с садовыми тачками в помещениях Г и В монтируются двери друг на против
друга. Для удобства перемещения ширина всех дверей не менее 900 мм.
Литература:
1.
Архив погоды в Пензе (http://rp5.ru).