Тулубаев Ф.Х., Болат Е.Б.
Костанайский государственный университет им. А.
Байтурсынова, Республика Казахстан
Термообработка рапса в
кипящем слое с применением вихревого эффекта
Растущий мировой спрос на масличные
культуры и продукты их переработки является стимулом для наращивания
производства указанной продукции не только в Украине и России, но также и в
Казахстане. В последние 5 лет Казахстан медленно, но уверенно укрепляет свои
позиции производителя масличных культур - расширяются посевные площади под масличными.
Причем расширение порой идет за счет сокращения посевных площадей под пшеницей.
Наиболее отчетливо это проявилась в 2010/11 – посевы сои, подсолнечника, рапса
и льна возросли на 487 тыс. га, а пшеницы сократились на 489 тыс. га. [3]
В условиях рискованного земледелия
послеуборочная сушка зерна имеет важное значение. Критическая для хранения влажность семян рапса тем ниже, чем выше
содержание в них масла. Сохранность посевных и товарных качеств семян рапса тем
лучше, чем ниже влажность семян, закладываемых на хранение. [2]
Одним из способом сократить расход энергии
является применение вихревой трубы.
Принцип работы вихревой трубы базируется
на вихревом эффекте. Сущность вихревого эффекта заключается в снижении
температуры в центральных слоях закрученного потока газа (свободного вихря) и
повышении температуры периферийных слоев. При соответствующей конструкции
устройства, вихрь газа удается разделить на два потока: с пониженной и
повышенной температурами. [1]
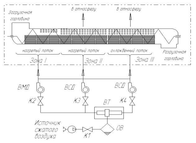
Принцип действия
установки таков: воздух от источника (компрессор) поступает в осушитель ОВ, а
затем в вихревую трубу ВТ, где благодаря процессам энергоразделения формируется
нагретый и охлажденный потоки. Эти потоки воздуха подаются в соответствующие
зоны, где винтовым рабочим органом материал перемещается к разрузочной
горловине.
С помощью крана
К1 регулируется подача сжатого воздуха, а через краны К1, К2 и К3 осуществляется подача соответственно горячих и
холодного потоков.
В зонах I и II
материал нагревается сушильным агентом, создаётся псевдоожиженный, кипящий
слой, который вентилируется нагретым воздухом, происходит дополнительный съём
влаги, менее интенсивный, чем в зоне I.

Рисунок 1 – Принципиальная
схема установки для сушения зерна рапса
После сушки семена должны быть охлаждены
до температуры, превышающей температуру наружного воздуха не более чем на
10°С, поэтому в
зоне III происходит охлаждение материала, с последующей разгрузкой.
Тепловой поток через
винтовой конвейер будет рассчитан по формуле:
,
где к – коэффициент теплопередачи винтового конвейера, Вт/м2К;
F – площадь поверхности нагрева, м2;
- среднеинтегральная разность температур, 0С.
Тепловой поток данной установки увеличивается за счет двух
составляющих:
1. Большей поверхности нагрева, так как продуваемый через зёрна воздух
создаёт и конвективную составляющую совместно с кондуктивной;
2. Большего времени пребывания частиц в конвейере, что влечёт за собой
больший съем теплоты.
Псевдоожиженный слой даёт еще одно преимущество – равномерный съём
влаги по длине винтового конвейера. В первой зоне за счёт вентилятора малого
давления создаём малый ожиженный слой, во второй зоне зёрна рапса начинают
вылетать из слоя, при этом высушенные зёрна находятся вверху слоя, а
недосушенные – внизу слоя.
На рисунке представлен характер изменения структуры зернового слоя в
зависимости от влажности зерна и скорости сушильного агента.

Рисунок 2 - Характер изменения структуры зернового
слоя в зависимости от влажности зерна и скорости сушильного агента: зона I – плотный слой,
зона I I –
разрыхленный слой, зона I I I
– псевдоожиженный слой.
В качестве источника сжатого воздуха в
рассматриваемой установке может быть использована обычная компрессорная станция,
которая позволяет получить общепромышленное давление нагнетания 6 – 8 бар.
Поскольку при сушке сельскохозяйственных культур градиенты температур строго
ограничены, общепромышленное давление является избыточным.
Литература:
1. Гинзбург А.С., Резчиков В.А. Сушка пищевых
продуктов в кипящем слое. Издательство «Пищевая промышленность». Москва. 1966.
2. Меркулов А. П.. Вихревой эффект и его применение в
технике. - М.: Машиностроение, 1969.
3. Серебрякова К. Масличный рынок Казахстана:
тенденции и перспективы, ИА «АПК-Информ», www.apk-inform.com/ru.