Строительство и архитектура / 7. Водоснабжение и канализация
К.т.н. Калякин А.М., Чеснокова Е.В., Сауткина Т.Н., Толочкова И.С.,
Хурчакова А.А.
Саратовский государственный технический университет
имени Гагарина Ю.А., Россия
Особенности кинематики
течения перед цилиндром при обтекании его открытым потоком
Часть 1
Возникновение и
развитие вихревых образований
Обтекание трехмерных препятствий открытым потоком реальной жидкости до сих пор является не решенной проблемой; в наибольшей степени это относится к области перед препятствием. Решение этой задачи имеет и практическое значение, например, при прогнозировании размыва перед промежуточными мостовыми опорами, при расчете сил, действующих на выступ в потоке и т.д.
При всей сложности этой задачи необходимо иметь непротиворечивую физическую модель явления, которая одновременно была бы полезной как при аналитическом анализе явления, так и при инженерном подходе в истолковании физических закономерностей.
В качестве основной задачи нас будет в дальнейшем интересовать обтекание кругового цилиндра на не размываемом и размываемом дне.
С целью изучения физических особенностей процесса обтекания проводились опыты в лаборатории НИСа Гидропроекта и в лаборатории гидравлики Саратовского государственного технического университета. В частности осуществлялась визуализация в толще потока и в пограничном слое путем наклеивания кристаллов марганцовокислого калия на исследуемый участок поверхности дна или обтекаемого тела. Опыты проводились при ламинарном и при турбулентном режимах обтекания (на не размываемом дне).
В результате опытов были выявлены следующие закономерности качественного характера:
1. Картины течения непосредственно перед цилиндром при ламинарном и при турбулентном режимах качественно различны.
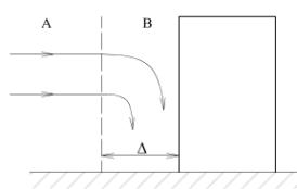
2.
При всех режимах существует нисходящие токи в близи
поверхности цилиндра, рис. 1, причем ширина
в области
, в которой происходит существенная деформация эпюры
скоростей набегающего потока уменьшается с увеличением числа Рейнольдса Re, где
,
– средняя скорость
набегающего потока
– диаметр цилиндра.

Рисунок 1.
3.
При ламинарном режиме обтекания (набегающий поток ламинарный)
в зоне
линии тока плавно
искривляются и проходят вниз, образуя непрерывные спирали, которые огибают
цилиндр и сносятся вниз по потоку, рис. 2. Движение в зоне
в этом режиме
установившееся.

Рисунок 2.
4.
При развитом турбулентном режиме набегающего потока нисходящие
токи у поверхности цилиндра сворачиваются в тонкие интенсивные вихревые шнуры подковообразной
формы, которые движутся вниз к дну, а дойдя до него изменяют направление
движения на 90° и продолжают движение вдоль поверхности дна в радиальном направлении;
на некотором расстоянии от поверхности цилиндра они полностью диффундируют. Ряд
таких нисходящих вихревых шнуров представляют в зоне
явно выраженный
нестационарный режим.
Таким образом, нисходящий поток (перенос жидкости) существует в виде движущихся вниз ко дну интенсивных вихревых шнуров, рис. 3.

Рисунок 3.
Литература:
1. Калякин А.М. Метод решения уравнений Навье-Стокса для обтекания препятствий типа мостовой опоры (с использованием эвристических гипотез). Совершенствование методов гидравлических расчетов водопропускных и очистных сооружений: межвуз. науч. сб. Саратов: Сарат. гос. Техн. ун-т, 1996. С. 68-74.
2. Калякин А.М. Модель процесса размыва перед препятствием типа мостовой опоры на основе представлений о вихре. Совершенствование методов гидравлических расчетов водопропускных и очистных сооружений: межвуз. науч. сб. Саратов: Сарат. гос. Техн. ун-т, 1997. С. 33-43.
3. Лойцянский Л.Г. Механика жидкости и газа. М.: Дрофа, 2003. 840 с.
4. Журавлев М. М. Местный разрыв у опор мостов. М.: Транспорт, 1984. 112 с.