Мельник В.М.
Національний технічний університет України «КПІ»
АПАРАТ ДЛЯ КУЛЬТИВУВАННЯ КЛІТИН
ІЗ ЗДВОЄНИМ ПОРШНЕМ
Апарат належить до біотехнології,
а саме до апаратів для культивування клітин, і може бути використаний в медицині
і клінічних дослідженнях при культивуванні клітин або тканин, а також в
мікробіологічній, харчовій і фармацевтичній промисловостях.
Відома установка для
культивування мікроорганізмів, яка містить з’єднані між собою в нижній частині
еластичним трубопроводом дві камери, обладнані пристроями для стерильного зливу
і доливу, пристрої для аерації і стерилізації повітря, а також реверсивний
привод для зворотно-поступального руху камер у вертикальній площині [1].
У заздалегідь простерилізовані
камери уводиться через пристрій для стерильного зливу і доливу стерильне
поживне середовище та інокулят. Засів інокулята здійснюється кожного разу на
початку технологічного процесу. У процесі вирощування культури, камери
переміщуються відносно одна одної уздовж вертикалі із заданою швидкістю. За
сигналом командного пристрою починає працювати мотор-редуктор, який за
допомогою перекинутого через блок тросу переміщує камери уздовж вертикалі,
внаслідок чого здійснюється перетікання культуральної рідини з однієї камери в
іншу. Надходження і вихід повітря у камери для переміщення культуральної рідини
здійснюється через пристрій для аерації та стерилізації повітря, який
герметично закріплений в горловині камер.
Недоліком цього технічного
рішення постає потреба у великих габаритах для виконання переміщень камер у
вертикальній площині.
Відомий також апарат для
культивування клітин, який містить циліндричний корпус з технологічними
патрубками, розміщений уздовж осі корпуса пустотілий приводний вал з рухомою
втулкою для забезпечення зворотно-поступального руху уздовж вала, до якої
приєднаний перемішуючий елемент у формі чотирьохланцюгового шарнірного
механізму з лопатками на кінцях, аератор і реверсивний привод [2].
У корпус через патрубок
заливається поживне середовище і подається посівний матеріал. В аератор надходять
гази для аерації культурального середовища. Включається привод з мішалкою, який
працює в імпульсному режимі, і приводить в обертальний рух вал і, разом з ним, втулки і лопатки. На лопатки
діють відцентрові сили і сили тяжіння, внаслідок чого лопатки повертаються на
шарнірах до горизонтального положення, створюючи радіально-осьові циркуляційні
потоки культурального середовища і породжену ними високу інтенсивність
тепломасообміну.
Надалі повторюються включення
привода і процес знову поновлюється
Недолік цього технічного рішення
полягає у низькій продуктивності технологічного процесу, обумовлений тим, що
зменшення обертів вала знижує інтенсивність перемішування і, відповідно, знижує
якість тепломасообміну. Крім того, не забезпечується потрібне збагачення киснем
культуральної рідини по всьому робочому об’єму, що уповільнює розвиток клітин,
а, отже, знижує продуктивність. Навпаки, при збільшенні обертів валу,
перемішуючий елемент руйнує слабкі оболонки клітин і також знижує
продуктивність технологічного процесу.
На недостатньо високу
продуктивність апарату чинить свій вплив наявність зон низької енерегетичної
активності периферійних і придонних шарів робочої рідини в процесі
перемішування.
Відомий апарат до того ж має
досить складну конструкцію, що є іншою його вадою.
В основу пропонуємої конструкції
поставлена задача росту продуктивності технологічного процесу шляхом підвищення інтенсивності перемішування
культуральної рідини за допомогою модифікації форми і характера руху
перемішуючого елемента і створення, завдяки цьому, енергетичної активності культуральної
рідини по всьому робочому об’єму апарата без надмірного ризику пошкодження оболонок
клітин, високого рівня збагачення киснем культуральної рідини і, відповідно,
росту продуктивності технологічного процесу.
Апарат для культивування клітин із
здвоєним поршнем містить циліндричний корпус з технологічними патрубками,
розміщений уздовж осі корпуса пустотілий приводний вал з рухомою втулкою для
забезпечення зворотно-поступального руху уздовж вала, до якої приєднаний
перемішуючий елемент у формі чотирьохланцюгового шарнірного механізму з
лопатками на кінцях, аератор і реверсивний привод, згідно заявленого винаходу, перемішуючий
елемент виконано у вигляді здвоєного, колової форми, поршня, який приєднаний до
рухомої втулки, яка становить з пустотілим приводним валом гвинтову пару, і
убезпечений від обертання паралельною до осі пустотілого приводного валу
напрямною, а циліндричний корпус апарату для культивування клітин всередині
обладнаний із зазором трьома, співвісно з корпусом, однаковими поперечними
дисковими перегородками з рівномірно розташованими прямокутними, радіальними,
заданого типорозміру, вікнами, перегородки мають центральний отвір для вільного
проходження здвоєного поршня і повернуті відносно друг друга.
Технічний результат від
використання апарату для культивування клітин із здвоєним поршнем забезпечується обладнанням апарату
перемішуючим елементом у вигляді здвоєного, колової форми, поршня, який
приєднаний до рухомої втулки, яка становить з пустотілим приводним валом
гвинтову пару, і убезпечений від обертання паралельною до осі пустотілого
приводного валу напрямною, а циліндричний корпус апарату для культивування
клітин всередині обладнаний із зазором трьома, співвісно з корпусом, однаковими
поперечними дисковими перегородками з рівномірно розташованими прямокутними,
радіальними, заданого типорозміру, вікнами, перегородки мають центральний отвір
для вільного проходження здвоєного поршня і повернуті відносно друг друга.
Рухаючись донизу, нижній поршень
надає культуральній рідині поступального руху у бік днища апарату. Збагачуючись
киснем від аератора, потоки линуть в горизонтальній площині до стінок корпуса
апарату, інша частина у вигляді повітряно-рідинної суміші підіймається вгору і,
частково, крізь вікна нижньої дискової перегородки надходить у проміжок між
нижньою і середньою перегородками (другий поверх), а частково рухається уздовж
нижньої поверхні в бік стінок корпуса із суттєво меншою швидкістю, при цьому
культуральна рідина щедро збагачується киснем, що надходить знизу.
У проміжку між нижньою і
середньою перегородками, а також середньою і верхньою перегородками відбуваються
аналогічні процеси. Важливо, що такі процеси відбуваються одночасно на всіх
рівнях, а не послідовно. За цих умов коїться більш інтенсивний тепломасообмін,
аерація і турбулентність культуральної рідини, як у центрі, так і на периферії,
що ліквідує зони застою у всьому робочому об’ємі апарату.
Таким чином, завдяки підвищенню
енергетичної активності культуральної рідини, ліквідації застійних зон
периферійних шарів внутрішнього об’єму апарата, цілковитого забезпечення
технологічних вимог до ступеня аерації, інтенсифікується розвиток клітин і,
відповідно, зростає продуктивність апарату.
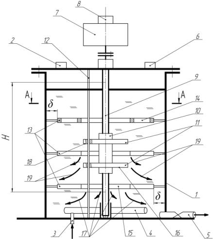
Далі сутність апарату пояснюється
відповідним описом та кресленнями, де: на рис. 1 показаний в поздовжньому
перерізі загальний вид апарату; на рис. 2 показаний переріз А-А на рис. 1.
Апарат для культивування клітин із
здвоєним поршнем (фіг. 1) використовується в медицині і клінічних
дослідженнях при культивуванні клітин або тканин, а також в мікробіологічній,
харчовій і фармацевтичній промисловостях і містить циліндричний корпус 1 з
патрубком 2 для уведення живильної рідини і посівного матеріалу, патрубок 3
з аератором 4, патрубок 5 для видалення культуральної рідини і патрубок 6 для
відведення відпрацьованого газу. Уздовж осі корпуса 1 розташований приєднаний
до мотор-редуктора 7 з командно-реверсуючим пристроєм 8, пустотілий приводний
вал 9 з рухомою втулкою 10, контактуючі поверхні яких становлять гвинтову пару.
До рухомої втулки 10 приєднаний
перемішуючий елемент у вигляді здвоєного, колової форми, поршня 11, який
убезпечений від обертання паралельною до осі пустотілого приводного валу 9
напрямною 12, циліндричний корпус 1 апарату всередині обладнаний із зазором “
” трьома, співвісно з корпусом 1, однаковими поперечними
дисковими перегородками 13 з рівномірно розташованими прямокутними,
радіальними, заданого типорозміру, вікнами 14, перегородки мають
центральний отвір 15 для вільного
проходження здвоєного поршня 11 і повернуті відносно друг друга.

Рис. 1

Рис. 2
У попередньо простерилізований
апарат до корпуса 1 уводять через патрубок 2 живильну рідину і посівний
матеріал (інокулят), після чого, через патрубок 3 подають до аератора 4 газ для
аерації культуральної рідини і вмикають командно-реверсуючий пристрій 8, за
сигналами якого приходить в дію мотор-редуктор 7 і пустотілий приводний вал 9,
який в межах заданого командно-реверсуючим пристроєм 8 ходу “Н” надає
зворотно-поступального переміщення рухомій втулці 10 і, приєднаному до неї і
убезпеченому від обертання напрямною 12, перемішуючому елементу у вигляді
здвоєного, колової форми, поршня 11, який приєднаний до рухомої втулки 10.
Рухаючися поступально донизу,
нижня поверхня 16 здвоєного поршня 11 видавлює розташовану під ним живильну
рідину через центральний отвір 15 в бік днища у вигляді потоків 17 і надає їй
руху до зазорів “
” з корпусом 1. Ту ж саму роботу виконує нижня поверхня 18
верхнього поршня у формі потоків 19, але у проміжку між нижньою і середньою
поперечними перегородками 14.
Повітряно-рідинна суміш рухається
знизу, від аератора 4, і через вікна 14 нижньої перегородки надходить у
проміжок між нижньою і верхньою перегородками у вигляді модульованих плоских
потоків, де зустрічається із горизонтальними потоками 19, внаслідок чого
турбулізується культуральна рідина.
Між середньою і верхньою
перегородками має місце та ж сама кінематична структура взаємодії потоків.
У зв’язку з тим, що вікна 14 в
поперечних перегородках повернуті відносно друг друга, висхідні потоки крізь
вікно 14 газово-рідинної суміші будуть певний час затримуватися у проміжку між
перегородками, збагачуючи киснем культуральну рідину, а потім, двічі змінивши
напрям руху, надійдуть до вікон 14 вищої перегородки і т.д. Таким чином,
турбулізація, тепломасообмін і збагачення киснем діються одночасно на усіх
рівнях по висоті і в горизонтальній
площині, що слугуватиме підвищенню продуктивності технологічного процесу.
При рухові здвоєного поршня угору,
структура руху культуральної рідини повторюється.
Відсутність в апараті
обертального руху перемішуючого елемента приводить до зниження зайвих ризиків
пошкодження слабких оболонок клітин.
Таким чином, використання апарату,
за допомогою нових властивостей, буде збільшувати якість та інтенсивність
тепломасообміну і аерації культуральної рідини безперервно під час усієї роботи
апарату, а не у визначені відрізки часу, що забезпечить швидкий розвиток клітин
і, відповідно, підвищить продуктивність технологічного процесу.
Джерела інформації:
1.
А.с. 1131899 А СССР, С12М1/00.
Установка для культивирования микроорганизмов [Текст]/ А.Н. Данилина, А.В.
Данилов, И.В. Александрова, А.А. Складнев, В.С. Ромазанов, И.А. Туков (СССР). -
№ 3226238/30-15; заявл. 25.12.80; опубл. 30.12.84, Бюл. №48. – 1 с.: ил.
2.
А.с. 1633814 А1 СССР, С12М3/00. Апарат для
культивирования клітин [Текст]/ А.И. Гуславский, В.Н. Качалов, Л.И. Ковальчук, И.И.
Дамиров (СССР). - № 4633148/13;
заявл. 05.01.89; опубл. 27.08.95, Бюл. №24. – 1 с.: ил.