Галузеве машинобудування/3
Хітров І.О., Гавриш В.С.
Національний університет водного господарства та
природокористування,
Україна, м. Рівне
ОРГАНІЗАЦІЯ ВИРОБНИЧОГО ПРОЦЕСУ ДИЛЕРСЬКОГО сервісного ПІДПРИЄМСТВА
Головний принцип технічного сервісу полягає в тому, що відповідальність
за технічний стан машин протягом всього терміну її експлуатації несе виробник
через систему дилерів.
Дилери можуть створювати власні універсальні і
спеціалізовані сервісні підприємства (рис. 1) або використовувати
ремонтно-обслуговуючу базу інших підприємств. Склад і структура цих підприємств
залежать від їх розміру і призначення, сервісного і технічного забезпечення
регіону, наявності умов для спеціалізації і кооперації та інших факторів.

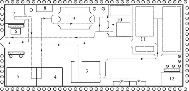
Рис. 1. План
дилерського підприємства:
1 – склад агрегатів; 2 – склад
запасних частин; 3 – ремонтно-механічна майстерня; 4 – пост очікування; 5 – пост
приймання і видачі машин; 6 – пост охорони; 7 – пост миття машин; 8 – очисні
споруди; 9 – пост технічного обслуговування і діагностування машин; 10 – пост зберігання
машин; 11 – пост продажу нових машин; 12 – адміністративний корпус
Організація виробничого процесу дилерського підприємства
здійснюється за наступною схемою (рис. 2).

Рис. 2.
Функціональна схема дилерського підприємства
Якщо дилерське підприємство продає машини, то вони
направляються на пост їх підготовки до продажу і за необхідністю на відповідну ділянку
для усунення несправностей, а потім – в зону зберігання.
Машини, які прибувають для технічного сервісу, проходять
миття, поступають на пост приймання для встановлення обсягу робіт і через зону очікування (або минаючи її)
направляються на відповідний виробничий пост.
Пост приймання і видачі машин призначений для зовнішнього
огляду, перевірки комплектності машини, її технічного стану, визначення орієнтовного
обсягу робіт, контролю виконаних робіт та їх випуску.
За необхідності для усунення причин несправностей машина
направляється на пост технічного обслуговування, діагностування, де
визначаються скриті несправності двигуна, системи живлення, електрообладнання,
прогнозується залишковий ресурс, усуваються незначні несправності та контролюється
якість виконання робіт.
В ремонтно-механічній майстерні здійснюють
планово-попереджувальний, заявлений поточний і капітальний ремонт, виконаний,
як правило, індивідуальним методом.
Зменшення вартості машин можна досягти шляхом їх збирання
і наступним обкатуванням на самому дилерському підприємстві (рис. 3).

Рис. 3. Схема технологічного
процесу збирання, регулювання та обкатування нових машин в дилерському
підприємстві
Таким чином, створення дилерського
підприємства в регіоні забезпечить відповідне технічне забезпечення господарств
і своєчасно надасть сервісні послуги.