Сельское хозяйство/Механизация
сельского хозяйства
к.т.н., доцент И.В. Кокунова, аспирант М.В. Стречень
ФГБОУ ВПО «Великолукская ГСХА», Россия
МАШИНА ДЛЯ ПЛЮЩЕНИЯ СТЕБЛЕЙ
СКОШЕННЫХ ТРАВ
В технологии заготовки
растительных кормов важной операцией является сушка трав в поле. Этот процесс сопровождается
не только потерей воды, но частично и сухого вещества, особенно наиболее ценных
легкопереваримых углеводов и белков. Величина потерь питательных веществ находится
в прямой зависимости от продолжительности сушки трав. Даже при быстрой сушке
растений на свету в результате только биохимических процессов теряется до 5-10%
сухого вещества. Если не применять специальных мер по ускорению процесса сушки
трав, период интенсивной ферментативной деятельности увеличивается, а это
приводит к повышенным потерям питательных веществ. Особенно резко они
увеличиваются при попадании скошенной массы под атмосферные осадки.
Одним из способов сохранения питательности заготавливаемого
корма является сокращение продолжительности сушки трав в поле, которого можно
достичь применением современных косилок, оснащенных плющильными аппаратами
различной конструкции.
В Великолукской государственной
сельскохозяйственной академии разработана машина для плющения стеблей скошенных
трав в поле. Машина состоит из рамы с колесным ходом 8 (рисунок 1),
подбирающего пальцевого механизма 7, установленного на коленчатой оси разборной
конструкции внутри нижнего плющильного вальца 3, верхнего подпружиненного
вальца 5, отражателя 2, пружинного предохранителя 4, чистиков 6, механизма
привода рабочих органов, прицепного устройства 1. На данное техническое решение
подана заявка на полезную модель РФ (регистрационный номер 2011152362).

Рисунок 1 – Схема и технологический процесс работы машины для
плющения трав: 1 – прицепное устройство; 2 – отражатель; 3, 5 –
нижний и верхний плющильные вальцы; 4 – пружинный
предохранитель; 6 – чистики; 7 – подбирающий пальцевый механизм; 8 – опорные
пневматические колеса.
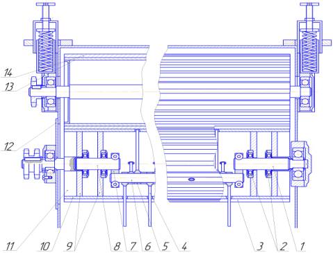
Плющильный аппарат состоит из нижнего 11
(рисунок 2) и верхнего 13 плющильных ребристых вальцов, вращающихся с
одинаковой скоростью навстречу друг другу. На внешней поверхности плющильных
вальцов приварены бичи 3. При работе бичи верхнего вальца входят в пазы нижнего,
расплющивая между своими рабочими поверхностями стебли, что ускоряет их
влагоотдачу.
Внутри корпуса 10 нижнего вальца приварены
диски 9. В шарикоподшипниках 2, закрепленных на этих дисках установлена
коленчатая ось разборной конструкции. Она состоит из цапф 1 и 8 и трубчатой оси
6. Разъемные щеки 7 жестко связывают все части коленчатой оси. На трубчатой оси
надеты втулки 5 с пальцами 4, которые выходят из корпуса 10 через сквозные
отверстия, выполняющие роль направляющих.
При вращении нижнего плющильного вальца
пальцы, увлекаемые отверстиями поворачиваются на неподвижной оси. Так как ось
смещена относительно центра вращения вальца, пальцы с его нижней стороны
выступают из корпуса, а с верхней – скрываются, поэтому подбирающий механизм
активно захватывает срезанные стебли в нижней части, а по мере приближения к
зоне плющения освобождает стебли, утопая в корпусе.

Рисунок 2 – Плющильный апарат: 1, 8 – цапфы; 2 –
шарикоподшипник; 3 – бичи; 4 – пружинные пальцы; 5 – втулка; 6 – трубчатая ось;
7-разъемная щека; 9 – диск; 10 – корпус вальца;11,13 – плющильные вальцы; 12 –
люк; 14 – бич.
Для монтажа и демонтажа плющильных вальцов
в левой боковине корпуса машины предусмотрен люк 12. Для очистки рабочей
поверхности вальцов от залипания травяной массы используются чистики 6 (рисунок
1). Давление, создаваемое плющильными вальцами, регулируется с помощью
пружинного предохранителя 4. Привод рабочих органов машины осуществляется от
вала отбора мощности трактора.
Технологический процесс работы плющилки
протекает следующим образом. При движении машины вдоль валка пальцы
подбирающего механизма приподнимают подвяленную травяную массу и,
взаимодействуя с отражателем, подают её в зону плющения. Плющение растительной
массы производят ребристые плющильные вальцы. В результате попадания травяной
массы в зазор, образованный поверхностью плющильных вальцов, у растений
повреждается наружный восковой слой, что значительно способствует
интенсификации процесса сушки. После плющения происходит укладывание массы в
валок.
Разработанная машина может применяться для
плющения скошенных трав в поле в том случае, когда неблагоприятные погодные
условия не позволяют проводить их плющение одновременно при кошении
растительной массы, а также может использоваться при повторном плющении уже
подвяленной массы с целью ускорения процесса сушки.
Применение современных
кормозаготовительных технологий и новых технических средств для их реализации позволит
снизить потери питательных веществ при заготовке стебельчатых кормов и повысить
их качество.