Строительство и архитектура
Кострова Л.А
КазНТУ им.К.И.Сатпаева, Казахстан
ТРЕХМЕРНОЕ МОДЕЛИРОВАНИЕ В АРХИТЕКТУРНОМ ПРОЕКТИРОВАНИИ
В настоящее время архитектурные и
дизайнерские проекты разрабатываются с помощью такого инструмента, как
графические редакторы. Самой популярной программой трехмерного моделирования является
3dsMAX.
Моделирование объектов с помощью 3D-графики
устраняет необходимость создания макета и обеспечивает гибкие возможности
показа изображения сцены под любым углом зрения.
Одной из первых задач при создании
архитектурного проекта является моделирование стен. Самый простой способ включает в себя несколько этапов:
- вычерчивание плана в AutoCAD;
- импорт изображения в 3ds MAX;
- обводка стен инструментом Line;
- создание оконных и дверных проемов.
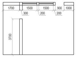
На рисунке
показан план, который импортирован в 3dsMAX. Теперь нужно обвести его
сплайновой линией, прищелкивая все конные и дверные проемы.

К
полученному замкнутому контуру применяется модификатор Extrude c количеством
сегментов 3, а оконные проемы соединяются инструментом Bridge [1].


Этим же способом можно
строить не только комнату, но и здание любой сложности.
Существует более интересный способ
построения. По плану комната имеет размеры 5000мм×8000мм. Начнем построение
с создания стандартного примитива Box с параметрами 3700мм×1700мм×-100мм.
Далее преобразуем его в Editable Poly и с помощью инструмента Extrude создадим
дополнительные полигоны глубиной: 300мм – 1500мм - 200мм – 1500мм – 200мм –
900мм - 100мм. Затем для получения дверного проема, простенка и толщины стены
выдавливаем полигоны последовательно на 900мм – 300мм – 300мм.
Для
получения комнаты выделяем полигоны стен и оконных проемов, применяем инструмент
Extrude, причем сделать это надо три раза, выдавливая на разную высоту разные
группы полигонов [1].
Сначала выдавливаем полигоны до оконного
проема, затем исключив полигоны оконных проемов – на высоту оконного проема и
далее – до потолка. С помощью процедуры Bridge соединяем полигоны, как показано
на рисунке.
В итоге получаем объект, который является
цельным и это усложняет процесс назначения ему материалов и текстур. Конечно,
можно создать составной материал и различным группам полигонов присвоить собственные
идентификационные номера - ID, но проще разделить пол и стены. Для этого, в
окне проекций Left или Front, выделяем все стены и применяем Detach. Теперь
можно назначать материалы или текстуры отдельно стенам и полу.
После построения оконных и дверных
проемов, вставляем рамы, двери, стекла и назначаем всем объектам
материалы.
Существует много других способов
моделирования трехмерных изображений. Самый простой – с помощью стандартного
примитива – Box, а затем булевскими операциями
можно вырезать оконные и дверные проемы [2].
Описываются способы построения стен и из
стандартного примитива – Plane. При этом
количество сегментов должно быть равно количеству простенков и оконных проемов,
но вершины нужно будет перемещать, так, чтобы они были расположены так, как на
плане[3].
Но способ, который использует выдавливание
полигонов на нужную глубину, а затем мостом (Bridge) соединяет оконные и
дверные проемы, является самым простым и быстрым при построении комнат и стен
зданий.
Литература
1.
Кострова, Л.А.,
Моделирование стен в 3dsMAX, Сб. международной научно-практической конференции
«Архитектура, градостроительство и дизайн в странах Центральной Азии на рубеже
тысячелетий», Бишкек, 2009, С. 46-52.
2.
Маров М., Эффективная
работа в 3ds MAX 8, С-Петербург-Москва-Харьков-Минск, 2006г, 864с
3.
Рябцев Д., 3ds max
Дизайн интерьеров, СПб, «Питер» 2008г., 429с
4.
Интернет ресурсы